Evaluation saved!
Only you will see it
Comment saved!
Add your evaluation and/or a comment for this ad. You will only see your
140.000 € Advise me if it drops
it has dropped 10.000 €

Business premise in Rafalafena Castellón de la Plana

  • 240 m2
  • 2 bathrooms
  • 583 €/m2

ATENCION INVERSORES: GRAN OPORTUNIDAD de Local en el CENTRO COMERCIAL RAFALAFENA:
Tienen una superficie de 205m2 aproximados de local más terrazas con un total construido de unos 240m2, el local está listo para entrar y trabajar (recientemente reformado)
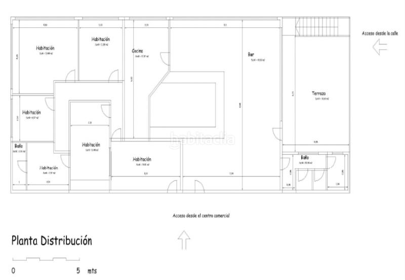
Se divide en varias estancias donde actualmente se utiliza como una ludoteca.
Tiene dado de alta el agua y la luz y cuenta con ascensor.
El local es ideal para Ludoteca, centro de deportes, oficinas … ya que está muy cerca de la Ciudad de la Justicia o destinarlo para alquilarlo para oficinas coworking.
Esta al lado del gimnasio Suma y a 5 minutos del centro de Castellón.

Impuestos y comisión inmobiliaria no incluido en el precio.
*Este anuncio es a título informativo, no vinculante, ni contractual con posibles variaciones o erratas.

last modified

Space distribution

  • Floor area 240 m2

General features

  • Whitout air-conditioning
  • Year built 1980
  • Energy Certificate :
    Consumo:
    G
    999 kW h m2 / año
    Emisiones:
    G
    999 kg CO2 m2 / año
Ad : 30158000000295

Location

Rafalafena Carrer de Rafalafena

Click on the map to navigate around it
Would you like us to notify you when we get ads like this one? Create your alert and we will notify you by email when a new ad appears or an existing ad has changed.
 

Contact JCB INMOBILIARIA

Ad reference habitaclia/258:

You will see the telephone number after sending your contact to the announcer to attend you.
You will see the phone number after you contact
Sending...