Evaluation saved!
Only you will see it
Comment saved!
Add your evaluation and/or a comment for this ad. You will only see your

Chalet in Altea hills Altea

  • 331 m2
  • 4 hab.
  • 5 bathrooms
  • 5.921 €/m2

Ubicada en la exclusiva zona de Altea, esta villa ofrece un entorno privilegiado con vistas al mar. La propiedad se encuentra a solo 3 km de la costa, permitiendo disfrutar de la brisa marina y de un ambiente tranquilo y relajante. Diseñada para aquellos que buscan un hogar que combine lujo y confort, esta villa es ideal para familias que valoran la privacidad y el estilo de vida mediterráneo. Con una construcción moderna y acabados de alta calidad, cada detalle ha sido cuidadosamente pensado para ofrecer una experiencia de vida excepcional.

EXTERIORES

El exterior de la villa es un verdadero oasis de tranquilidad. Cuenta con un jardín privado que proporciona un espacio verde perfecto para el esparcimiento y la relajación. La terraza es un lugar ideal para disfrutar de las impresionantes vistas al mar, ya sea tomando el sol o compartiendo una comida al aire libre. Además, la villa dispone de una piscina privada, perfecta para refrescarse en los cálidos días de verano y disfrutar de momentos inolvidables con familiares y amigos.

INTERIORES

El interior de la villa está diseñado para ofrecer el máximo confort y funcionalidad. Con cuatro dormitorios, cada uno equipado con armarios empotrados, la villa garantiza espacio y comodidad para toda la familia. Los cinco baños aseguran privacidad y conveniencia, especialmente en momentos de visitas o reuniones familiares. La calefacción por suelo radiante proporciona un ambiente cálido y acogedor durante los meses más fríos. La villa también cuenta con un garaje, ofreciendo seguridad y protección para los vehículos. La distribución está pensada para maximizar el espacio y la luz natural, creando un ambiente acogedor y elegante.

ALTEA

Altea, en la Costa Blanca de España, seduce con su encanto mediterráneo y su casco antiguo de calles empedradas y casas blancas. Sus playas de aguas transparentes y su icónica cúpula azul y blanca de la iglesia de Nuestra Señora del Consuelo la convierten en un destino turístico de ensueño. El turismo en Altea se centra en sus playas, el casco antiguo con su ambiente bohemio, sus galerías de arte y la artesanía local. Eventos como la Fiesta de Moros y Cristianos y el Festival de las Artes Escénicas atraen a visitantes de todo el mundo. El estilo de vida en Altea es relajado y cosmopolita. Los residentes y turistas disfrutan de la belleza de sus calles pintorescas, la gastronomía mediterránea en sus numerosos restaurantes y el ambiente tranquilo que se respira en sus terrazas junto al mar. Altea es una joya que combina la tradición con el disfrute de la vida mediterránea contemporánea.

last modified

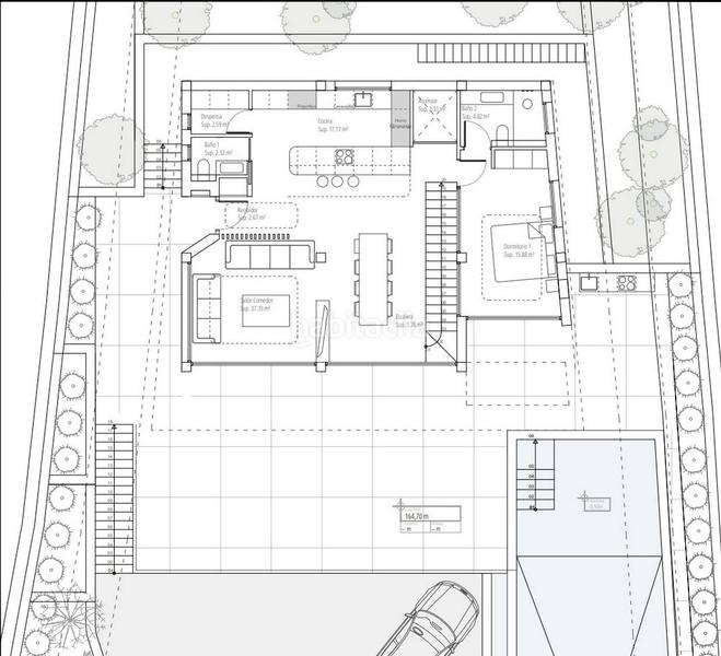
Space distribution

  • 4 rooms
  • Floor area 331 m2
  • Land 823 m2
  • 5 bathrooms

General features

  • Energy Certificate :
    Consumo:
    G
    999 kW h m2 / año
    Emisiones:
    G
    999 kg CO2 m2 / año
Ad : 39451000001203

Location

Altea Hills

Click on the map to navigate around it
1.960.000 € Ad price
3.454 €/m2€/m2 población
5.921 €/m2€/m2 of the ad
How much would you like to pay?
See €/m2 evolution in Altea
Would you like us to notify you when we get ads like this one? Create your alert and we will notify you by email when a new ad appears or an existing ad has changed.
 

Contact Pedro Torres 10x

Ad reference habitaclia/21551603-01 :

You will see the telephone number after sending your contact to the announcer to attend you.
You will see the phone number after you contact
Sending...