Evaluation saved!
Only you will see it
Comment saved!
Add your evaluation and/or a comment for this ad. You will only see your

Chalet with parking pool in Sol de Mallorca Calvià

  • 1.000 m2
  • 5 hab.
  • 5 bathrooms
  • 4.950 €/m2

Nueva villa con vista al mar en construcción, en venta en Sol de Mallorca

Esta llamativa y lujosa villa ocupará una parcela de alrededor de 1.724 y tendrá una muy generosa área de construcción de aprox.1.000m2, contará con material de primera calidad, diseño elegante y estará ubicada en una deseable zona residencial de Sol de Mallorca, a sólo un corto paseo de la playa más cercana .

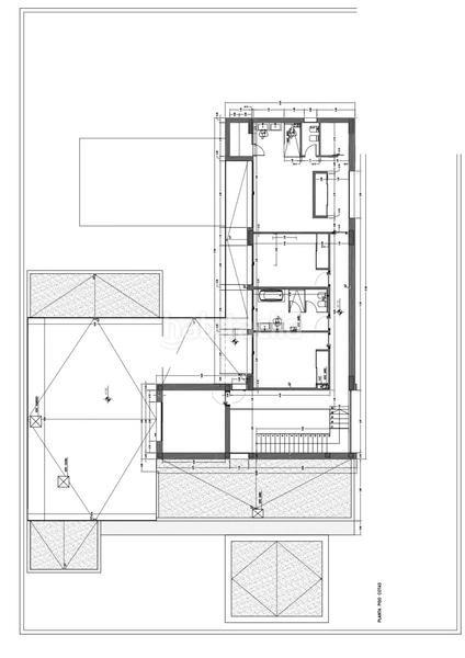
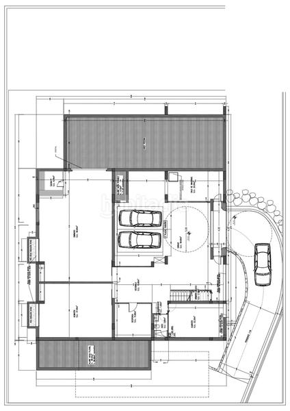
La planta baja tendrá un vestíbulo de entrada con un ascensor , un dormitorio doble con vestidor y baño en suite, una cocina equipada de diseño y un salón-comedor de planta abierta con chimenea y grandes puertas correderas que permitirán una abundancia de luz natural. Este nivel también tiene un aseo para invitados y un lavadero.
El primer piso impresionará con vistas al mar y terrazas con fachada de cristal, constará de tres dormitorios dobles, cada uno con baño en suite y tendrá una habitación adicional que podría ser utilizada como oficina o dormitorio extra. El nivel superior también tendrá una zona de spa de lujo, un gimnasio separado, un almacén y un apartamento para el personal y los invitados.

El espacio exterior estará ajardinado con una piscina privada y una terraza desde donde se podrá disfrutar del clima mediterráneo durante todo el año.

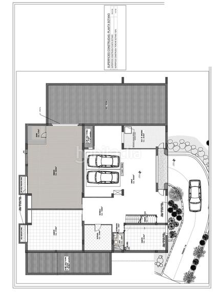
Otras características incluirán un aparcamiento subterráneo para hasta 4 coches, una bodega, sala de juegos, jardín, armarios empotrados y persianas. El comprador también podrá elegir materiales específicos para su gusto.

Actualmente en construcción, se espera que la villa esté terminada en noviembre de 2024.

Sol de Mallorca es una de las zonas residenciales de Mallorca más apetecidas y está emplazada en un lugar perfecto, entre dos lujosos puertos deportivos, Puerto Portals y Port Adriano. A corta distancia andando encontrará ensoñadoras calas pequeñas con arena fina. El centro de Palma está ubicado a 25 minutos en coche y el aeropuerto a 25 minutos.

Para obtener más información, póngase en contacto con BALEARIC PROPERTIES ESTATE AGENTS MALLORCA por correo electrónico o llame a la oficina de Puerto Portals (+34) - Ver más detalles sobre otros Chalets en Sol de Mallorca o solicite información para comprar un chalet en Sol de Mallorca.

"Balearic Properties ha estado en el sector de immobiliaria durante muchos años. La sede de la compañía está en Mallorca y con los años, hemos acumulado una incomparable cartera de propiedades para todos los presupuestos, por medio de la cual tenemos ya ha ayudado con éxito a 10.000 clientes a encontrar su nuevo hogar en las Baleares. Nuestras empresas de gestión de proyectos y construcción ofrecen una gama única de villas ""llave en mano"" lujosas para satisfacer todas las necesidades individuales y personales. También ofrecemos más de 200 villas vacacionales que garantizan a nuestros clientes una experiencia inolvidable.

Balearic Properties es el socio exclusivo de Savills en Mallorca. La empresa ofrece a los clientes una gran experiencia de más de 20 años en el mercado inmobiliario local. Nuestra cartera incluye todo tipo de villas modernas, casas de campo y nuevos desarrollos que están de moda en las mejores zonas de Mallorca. Balearic Properties también se especializa en propiedades de primera linea al mar y grandes propiedades. La empresa ofrece un servicio completo de propiedades que incluye administración de propiedades, alquileres de vacaciones, administración de proyectos y servicios legales."

last modified

Space distribution

  • 5 rooms
  • Floor area 1000 m2
  • Land 1724 m2
  • 5 bathrooms

General features

  • Particular pool
  • Parking place
  • Air-conditioning
  • Year built 2020
  • Energy Certificate :
    Consumo:
    G
    999 kW h m2 / año
    Emisiones:
    G
    999 kg CO2 m2 / año
Ad : 47177000000544

Location

Sol de Mallorca

Click on the map to navigate around it
4.950.000 € Ad price
6.879 €/m2€/m2 población
4.950 €/m2€/m2 of the ad
28% cheaper than the average*
See €/m2 evolution in Calvià
Would you like us to notify you when we get ads like this one? Create your alert and we will notify you by email when a new ad appears or an existing ad has changed.
 

Contact Balearic Properties

Ad reference habitaclia/SWOSDM40165:

You will see the telephone number after sending your contact to the announcer to attend you.
You will see the phone number after you contact
Sending...