Favorito y comentario
Chalet with heating in Castellnou-Can Mir-Can Solà Rubí
Main characteristics
- 158 m2
- 4 hab.
- 2 bathrooms
- 3.006 €/m2
Detailed information
Una casa con alma y carácter en Rubí
Reformada íntegramente en 2020, esta vivienda combina el confort moderno con el encanto de una casa con historia.
Se ha renovado la cocina, los baños, el revestimiento exterior y las terrazas, además de toda la instalación eléctrica.
Dispone de aire acondicionado, estufa de pellets, radiadores eléctricos, 12 placas solares, y cerramientos nuevos con doble acristalamiento y contraventanas de madera, garantizando aislamiento, eficiencia y confort durante todo el año.
Espacio exterior y entorno
En una parcela esquinera de 1.000 m², elevada respecto a la calle y orientada al sur, la casa goza de mucha privacidad y vistas despejadas a Collserola.
Cuenta con jardín privado, zona infantil con casita en el árbol —un detalle encantador que recuerda a las películas americanas— y piscina montable ideal para el verano.
Existe la posibilidad de construir una piscina fija y ampliar el jardín, con presupuesto del propietario inferior a 25.000 €.
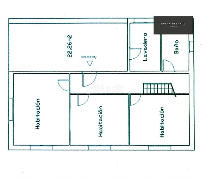
Distribución
· Planta principal: salón-comedor con chimenea, cocina abierta con barra y aseo de cortesía, con salida a la terraza y a la zona de pérgola.
· Planta inferior: tres dormitorios dobles, una sala polivalente o cuarto dormitorio, un baño completo y lavadero, con acceso también desde el exterior.
Ubicación
Situada en la urbanización de Castellnou – Can Mir, en una zona tranquila y residencial, a solo 5-10 minutos del centro de Rubí y 10-15 minutos de Sant Cugat del Vallès, y con una parada de autobús a 150 m.
Cerca de supermercados, colegios, transporte público y zonas verdes, ofrece la combinación perfecta entre comodidad, privacidad y conexión.
last modified
Space distribution
- 4 rooms
- Floor area 158 m2
- Terrace 50 m2
- 2 bathrooms
- Office Kitchen
- Lumber room
General features
- Heating
- Whitout parking place
- Furnished
- Air-conditioning
- Year built 1974
one
Location
Castellnou-Can Mir-Can Solà d'Amposta