Evaluation saved!
Only you will see it
Comment saved!
Add your evaluation and/or a comment for this ad. You will only see your

Flat with heating in El Poble Sec - Parc de Montjuïc Barcelona

  • 116 m2
  • 5 hab.
  • 2 bathrooms
  • 3.440 €/m2

HERMOSA VIVIENDA COMPLETAMENTE REFORMADA, LISTA PARA ENTRAR A VIVIR, DE MÁS DE 100M, 5 HABITACIONES Y CON ASCENSOR!!!

LA CASA AGENCY TIENE EL PLACER DE PRESENTARTE: Si buscas amplitud, luz y una ubicación privilegiada, este piso en la calle Mare de Déu del Remei puede ser tu nuevo hogar. Situado en una primera planta con ascensor, ofrece 116 m² construidos y una distribución pensada para el confort. Distribución y características:

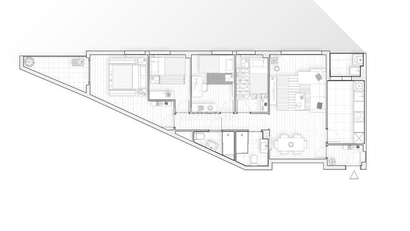
- 5 habitaciones (antes 4, como se aprecia en el plano): 2 dobles (una de ellas con acceso directo a la terraza)2 medianas1 individual. Todas las estancias son exteriores, aportando luz natural en todo el piso.
- Amplio salón-comedor, perfecto para disfrutar en familia o con amigos.
- Cocina independiente equipada, funcional y lista para su uso.
- 2 baños completos, prácticos y en buen estado.

Además, la vivienda cuenta con: Terraza ideal para relajarte al aire libre.Trastero para mayor comodidad.Calefacción y aire acondicionado, para garantizar confort todo el año.

Ubicación: Vivir aquí significa tenerlo todo cerca: zonas verdes, espacios de ocio, la Fuente Mágica y el Teleférico de Montjuïc a pocos pasos, además de una amplia oferta gastronómica y cultural. Perfectamente comunicado con transporte público: Metro Poble Sec (L3)Varias líneas de autobús y tren cercanas. Un piso con espacio, luz y una ubicación excelente en uno de los barrios con más vida de Barcelona.

OFRECEMOS TASACIÓN DE SU VIVIENDA DE MANERA GRATUITA.

Ven a verlo sin compromiso. ¡Clica en el logo para ver más inmuebles! Le esperamos en la casa agency. Juntos encontraremos su hogar. *el precio de venta del inmueble aquí expuesto no incluye ni impuestos ni gastos que grava la compraventa (itp o iva, gastos notariales o registrales)

Aicat 12089.

last modified

Space distribution

  • 5 rooms
  • Floor area 116 m2
  • 2 bathrooms

General features

  • Heating
  • Year built 1998
  • Energy Certificate :
    Consumo:
    E
    99 kW h m2 / año
    Emisiones:
    E
    999 kg CO2 m2 / año

Residents facilities

  • Lift
Ad : 49814000001699

Location

El Poble Sec - Parc de Montjuïc Carrer de la Mare de Déu del Remei

Click on the map to navigate around it
399.000 € Ad price
4.042 €/m2€/m2 distrito
3.440 €/m2€/m2 of the ad
15% cheaper than the average*
See €/m2 evolution in Barcelona (Sants Montjuïc)
Would you like us to notify you when we get ads like this one? Create your alert and we will notify you by email when a new ad appears or an existing ad has changed.
 

Contact La Casa Agency Punto Sant Ildefons

Ad reference habitaclia/LCB38141-1:

You will see the telephone number after sending your contact to the announcer to attend you.
You will see the phone number after you contact
Sending...