Favorito y comentario
Ground floor with heating in Monte Alto - Zalaeta - Atocha Coruña (A)
Main characteristics
- 85 m2
- 2 hab.
- 2 bathrooms
- 3.165 €/m2
Detailed information
Fantástico piso a ESTRENAR en MONTE ALTO.
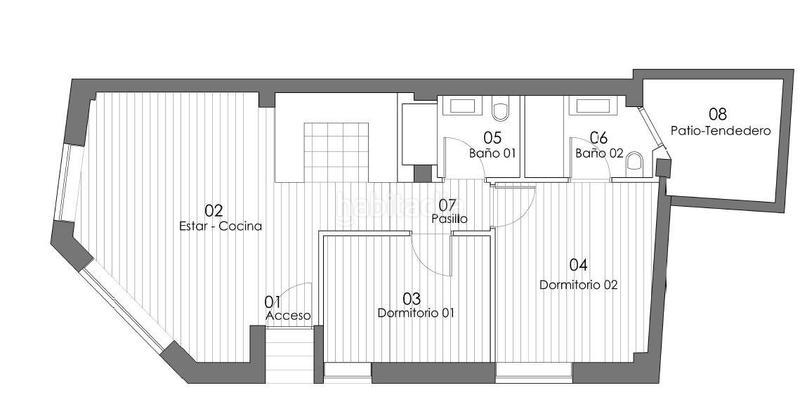
Os presentamos esta amplia planta baja de 78m2 más 6m2 de terraza, con preciosos acabados a estrenar, que cuenta con dos dormitorios uno de ellos con baño en suite y acceso directo a un patio interior; un segundo cuarto de baño y un amplio salón comedor exterior con cocina americana, completamente equipada y amueblada con altas calidades.
Entre sus acabados, suelos de tarima AC4,ventanas climalit de 4+4,calefacción eléctrica individual, armarios empotrados suelo-techo, acumulador de agua 100 litros, electrodomésticos TEKA y lavavajillas empotrado.
En una de las zonas más demandas del momento con todos los servicios al alcance; comercios, supermercados, centros deportivos y educativos, paradas de autobús… y que además está a pocos metros de las playas de Matadero y Orzán.
(Con la posibilidad de negociar la compra de algún mueble, no incluídos en el precio de venta)
¿Es lo que buscas?
Nuestro lema es la excelencia y trabajamos día a día para mantenerla. Hacemos la experiencia de compra o venta de un inmueble única para cada uno de nuestros clientes y propietarios. Bienvenidos a la singularidad, bienvenidos a Incor.
OFRECEMOS SOLUCIONES, NO PROMESAS
Encuentra más en
last modified
Space distribution
- 2 rooms
- Floor area 85 m2
- 2 bathrooms
General features
- Heating
- Whitout parking place
- Whitout air-conditioning
- Year built 2025
Residents facilities
- Whitout lift
one
Location
Monte Alto - Zalaeta - Atocha Rúa Gerión