Evaluation saved!
Only you will see it
Comment saved!
Add your evaluation and/or a comment for this ad. You will only see your

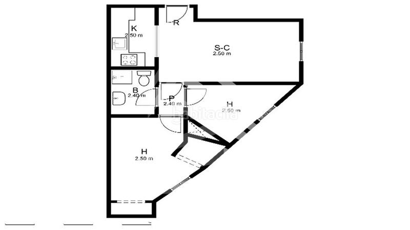
Ground floor in Ca n'Anglada Terrassa

  • 60 m2
  • 2 hab.
  • 1 bath
  • 1.700 €/m2

West Side vende:

Piso en Terrassa, Barcelona.

Este inmueble tiene 60 m² construidos y distribuidos en salón-comedor, cocina abierta, 2 habitaciones y 1 baño.

Tiene suelos de gres y ventanas de aluminio.

Está situado en la planta baja de una finca con ascensor.

Se encuentra en Terrassa centro, donde hay servicios básicos, comercios, supermercados, jardines y paradas de autobús.

Cuenta con fácil acceso a la estación de tren Terrassa Este y a la N-150.

No dude en llamar y pedir más información.

last modified

Space distribution

  • 2 rooms
  • Floor area 60 m2
  • 1 bath

General features

  • Whitout parking place
  • Whitout air-conditioning
  • Energy Certificate :
    Consumo:
    F
    20 kW h m2 / año
    Emisiones:
    F
    100 kg CO2 m2 / año

Residents facilities

  • Whitout lift
Ad : 14283003845136

Location

Ca n'Anglada Carrer de Sant Crispí

Click on the map to navigate around it
102.000 € Ad price
1.873 €/m2€/m2 distrito
1.700 €/m2€/m2 of the ad
9% cheaper than the average*
See €/m2 evolution in Terrassa (Llevant)
Would you like us to notify you when we get ads like this one? Create your alert and we will notify you by email when a new ad appears or an existing ad has changed.
 

Contact WEST SIDE IMMOBILÀRIA BCN

Ad reference habitaclia/Q0138-003-654-V2:

You will see the telephone number after sending your contact to the announcer to attend you.
You will see the phone number after you contact
Sending...