Evaluation saved!
Only you will see it
Comment saved!
Add your evaluation and/or a comment for this ad. You will only see your

House with parking in Alaquàs

  • 249 m2
  • 3 hab.
  • 4 bathrooms
  • 339 €/m2

SOLAR EN ALAQUAS

¿Te gustaría vivir en el centro de Alaquás? Con las comodidades de la vida tranquila del centro de la población pero a la vez muy cerca de la capital. ¡Esta es tu oportunidad!

Ponemos a su disposición esta vivienda lista para ser reformada en el centro de Alaquàs.

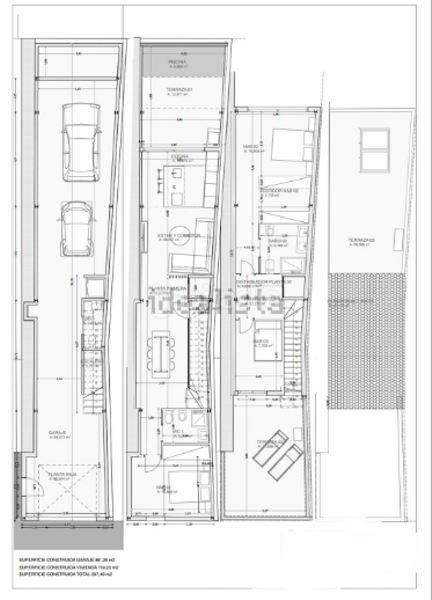
La vivienda, de 83 metros de superficie, tiene actualmente construida la planta baja y una primera planta, pero el proyecto está preparado para hacer hasta 3 plantas, lo que la convertiría en una vivienda de más de 200 metros, con 4 metros de fachada y 25 de longitud.

La casa se vende con proyecto de arquitectura y permisos de derribo y de construcción revisados y aprobados por el ayuntamiento. Además de las tasas pagadas, la licencia de consellería aprobada para realizar excavación tras derribo y pagada la solicitud.

El proyecto se realizó para una casa con garaje con capacidad para cuatro vehículos, patio interior con piscina de 4 metros y dos terrazas. Tres habitaciones, la principal con vestidor y baño en suite, otro baño y un aseo en el garaje.

Aunque este proyecto se puede modificar para hacer al gusto del comprador, sin duda, es una oportunidad perfecta para comprar y realizar rápidamente la reforma de una vivienda unifamiliar preciosa en pleno centro de Alaquàs ya mismo.

¡Ven a visitarla sin compromiso y te informamos de todo, del proyecto, de sus posibilidades y de su situación!

Honorarios de agencia no incluidos. Precio no negociable. Este anuncio se muestra a título informativo, no es vinculante ni contractual. Los datos emitidos han sido proporcionados por terceros y se presumen veraces pero pueden contener errores.

last modified

Space distribution

  • 3 rooms
  • Floor area 249 m2
  • 4 bathrooms
  • Office Kitchen: No

General features

  • Parking place
  • Whitout air-conditioning
  • Close to public transport
  • Energy Certificate :
    Consumo:
    G
    999 kW h m2 / año
    Emisiones:
    G
    999 kg CO2 m2 / año
Ad : 41070000001169

Location

Click on the map to navigate around it
84.500 € Ad price
1.553 €/m2€/m2 población
339 €/m2€/m2 of the ad
78% cheaper than the average*
How much would you like to pay?
See €/m2 evolution in Alaquàs
Would you like us to notify you when we get ads like this one? Create your alert and we will notify you by email when a new ad appears or an existing ad has changed.
 

Contact BENICASA 2002 SERVICIOS INMOBILIARIOS

Ad reference habitaclia/BC2212:

You will see the telephone number after sending your contact to the announcer to attend you.
You will see the phone number after you contact
Sending...