Favorito y comentario
House with parking in El Higuerón Córdoba
Main characteristics
- 337 m2
- 4 hab.
- 3 bathrooms
- 711 €/m2
Detailed information
CASA DE TUS SUEÑOS EN VILLARRUBIA CON PISCINA !!
Construida en 2008, esta vivienda familiar se ubica en La Barriada de Villarrubia y ofrece una experiencia de vida excepcional en tres plantas: baja, primera y ático con azotea. Espacios amplios, luminosos y detalles de calidad definen cada rincón.
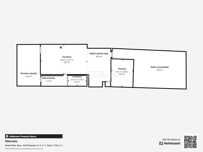
Al entrar, un porche predispone a la privacidad. El vestíbulo conectado con el garaje de 3 plazas introduce a un salón comedor con chimenea, ideal para disfrutar de las mejores reuniones familiares y con amigos. La cocina office, totalmente equipada, y el aseo con ventilación natural completan esta planta pensada para la comodidad.
Desde aquí accedemos a la auténtica joya de la casa: un gran patio cementado de 90m2 con una piscina de dimensión 5x4 metros, de tres años de uso, con área de depuradora, ducha con depósito y opción de agua caliente del pozo, perfecta para relajarse o para cuidar plantas en un entorno de bienestar.
La escalera de mármol trae al vestíbulo de la planta alta, donde se abre otro salón con split de aire acondicionado y cocina office, ambos con salida al balcón. Cuatro habitaciones, incluida una suite principal con baño, dos armarios empotrados, split de aire acondicionado y balcón, crean un espacio íntimo. Las tres habitaciones secundarias cuentan con armarios y salida al balcón, una de ellas también con split de aire acondicionado. Un segundo baño completa esta planta.
El ático ofrece una buhardilla diáfana y una azotea con vistas despejadas, un refugio ideal para crear un rincón chill out.
Los suelos de gres, puertas de madera y carpintería de aluminio marrón con doble acristalamiento garantizan comodidad y ahorro energético. Además, la vivienda cuenta con pozo propio y placas solares (3 500 W contratados) para agua caliente sanitaria y electricidad, un plus de sostenibilidad. Además, la vivienda cuenta con un espacio para instalar un ascensor que dé acceso a todas las plantas, pensado para adaptarse a cada etapa de la vida.
Esta casa es una opción excelente para quien busca un hogar con todas las comodidades a mano, amplio, luminoso y con una zona de piscina ideal para disfrutar. Perfecta para familias que desean calidad de vida sin renunciar al espacio y al bienestar. No dudes en contactarnos para más información o para concertar una visita.
¿Quieres descubrirla? Ponte en contacto y agenda tu visita, comienza a imaginar tu vida en este hogar especial.
INFORMACIÓN ADICIONAL: Para cumplir con la normativa vigente tenemos a disposición del cliente el Documento Informativo Abreviado (DIA) así como la información mínima solicitada en el artículo 31 de la Ley 12/2023, de 24 de mayo, por el Derecho a la Vivienda. Los precios indicados no tienen caducidad, pero pueden ser alterados sin previo aviso. En caso de venta, el precio corresponde únicamente al inmueble. Si el mobiliario le interesa a la parte compradora se negociará aparte. Los gastos de la compraventa serán según ley (Notaría, Registro de la Propiedad e Impuestos) y no están incluidos en el precio del inmueble reflejado, al igual que no están incluidos los honorarios de la Agencia Inmobiliaria que ascienden a un 2.5% del precio final de venta más el 21% de IVA (con un mínimo de 3.300 € más el 21% de IVA) en caso de compraventa y de una mensualidad de renta más el 21% de IVA en el caso de alquiler (exentos en las viviendas)
last modified
Space distribution
- 4 rooms
- Floor area 337 m2
- 3 bathrooms
General features
- Parking place
- Year built 2008
one
Location
El Higuerón