Evaluation saved!
Only you will see it
Comment saved!
Add your evaluation and/or a comment for this ad. You will only see your

House with pool in Desert Spring Golf Cuevas del Almanzora

  • 171 m2
  • 4 hab.
  • 3 bathrooms
  • 5.556 €/m2

Lujosas casas de 3 y 4 dormitorios de inspiración mediterránea con piscina en un prestigioso complejo de Almería
Estas casas de estilo mediterráneo con piscina privada se encuentran en un exclusivo complejo cerca de Playas de Vera en Almería, España. Playas de Vera es una hermosa y extensa playa conocida por su alta calidad. La playa se extiende desde los límites de la localidad de Garrucha.
Situadas a poca distancia de todos los servicios de la zona, estas amplias casas ofrecen un cómodo acceso a diversas instalaciones. Se encuentran a 5 km del centro de la ciudad de Vera, donde se puede encontrar una amplia gama de servicios, incluyendo un supermercado británico. La playa está a unos 7 km, y el aeropuerto internacional de Almería se encuentra a 90 km del complejo.
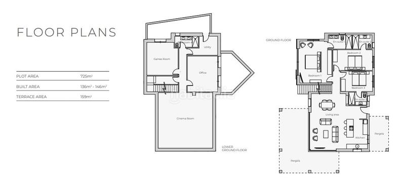
Las casas para comprar en Almería se construyen en parcelas de entre 725 y 775 metros cuadrados. Los compradores tienen la opción de incluir en su casa una piscina privada y aparcamiento exterior cerrado.
En el interior, las casas presentan una mezcla de estilo mediterráneo tradicional con elementos modernos, creando un interior ultramoderno y luminoso. En la planta baja, encontrará tres dormitorios dobles con armarios empotrados y baños en suite equipados con duchas. También hay una cocina y un comedor de planta abierta, así como un amplio salón con grandes ventanales de estilo francés que permiten que entre mucha luz natural en la casa.
Además, las casas tienen sótanos que ofrecen espacio y comodidades adicionales. Estos sótanos incluyen una sala de juegos, un despacho, un lavadero, una gran sala de cine y un cuarto de baño con ducha.
Tenga en cuenta que la construcción de la casa comenzará 18 meses después del pago inicial. LEI-00008

last modified

Space distribution

  • 4 rooms
  • Floor area 171 m2
  • Land 775 m2
  • 3 bathrooms
  • Lumber room

General features

  • Particular pool
  • Air-conditioning
  • Energy Certificate :
    Consumo:
    G
    999 kW h m2 / año
    Emisiones:
    G
    999 kg CO2 m2 / año
Ad : 55825000001502

Location

Desert Spring Golf

Click on the map to navigate around it
950.000 € Ad price
1.835 €/m2€/m2 población
5.556 €/m2€/m2 of the ad
See €/m2 evolution in Cuevas del Almanzora
Would you like us to notify you when we get ads like this one? Create your alert and we will notify you by email when a new ad appears or an existing ad has changed.
 

Contact TEKCE

Ad reference habitaclia/LEI-00008-4-DetachedVilla:

You will see the telephone number after sending your contact to the announcer to attend you.
You will see the phone number after you contact
Sending...