Evaluation saved!
Only you will see it
Comment saved!
Add your evaluation and/or a comment for this ad. You will only see your

House in Pinar de Advocat-Cometa Moraira

  • 268 m2
  • 4 hab.
  • 3 bathrooms
  • 6.265 €/m2

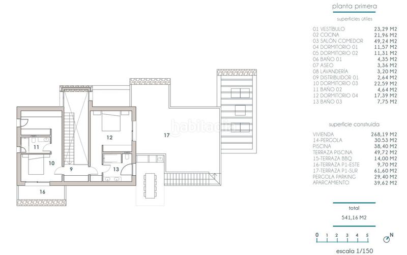
Villa de estilo ibicenco de nueva construcción en venta en MorairaPreciosa villa de estilo ibicenco de dos plantas situada en la agradable zona residencial Pinar de l'Advocat en Moraira. Una ubicación inmejorable ya que se encuentra a un paso del acogedor centro de Moraira, de la playa y de todos los servicios necesarios. La propiedad consta de un amplio salón-comedor con una cocina americana totalmente equipada, cuatro dormitorios, dos de ellos con baño en-suite, y otro baño familiar independiente. También cuenta con un práctico lavadero / cuarto de servicio y un aseo de invitados. En el exterior, podrá relajarse en la terraza cubierta, utilizar la barbacoa y disfrutar de la piscina con una amplia terraza. El jardín está bellamente ajardinado y es fácil de mantener. Hay una cochera para 2 vehículos.Otras características incluyen: aire acondicionado (conductos) con termostato en cada habitación, calefacción por suelo radiante, doble acristalamiento, cocina de verano, lavadero y ducha al aire libre.¿Quiere saber más sobre esta bonita villa ibicenca en Moraira? ¡Contacte con nuestra oficina!El precio mostrado no incluye impuestos ni gastos de compra / La oferta está sujeta a errores, cambios de precio, disponibilidad, omisión y/o retirada del mercado sin previo aviso / Muebles y contenidos según acuerdo personalizado y no según las fotos de la presentación

last modified

Space distribution

  • 4 rooms
  • Floor area 268 m2
  • Land 800 m2
  • 3 bathrooms

General features

  • Energy Certificate :
    Consumo:
    G
    999 kW h m2 / año
    Emisiones:
    G
    999 kg CO2 m2 / año
Ad : 39175000027844

Location

Pinar de Advocat-Cometa

Click on the map to navigate around it
1.679.000 € Ad price
4.311 €/m2€/m2 población
6.265 €/m2€/m2 of the ad
How much would you like to pay?
See €/m2 evolution in Moraira
Would you like us to notify you when we get ads like this one? Create your alert and we will notify you by email when a new ad appears or an existing ad has changed.
 

Contact MANSIONS.ES

Ad reference habitaclia/MLS40788Q:

You will see the telephone number after sending your contact to the announcer to attend you.
You will see the phone number after you contact
Sending...