Evaluation saved!
Only you will see it
Comment saved!
Add your evaluation and/or a comment for this ad. You will only see your

House in calle la central 4 in Cacicedo Camargo

  • 105 m2
  • 2.476 €/m2

NUEVA PROMOCION DE VIVIENDAS EN CACICEDO DE CAMARGO CON LICENCIA CONCEDIDA.

NUEVA PROMOCION DE VIVIENDAS EN CACICEDO DE CAMARGO.
OBRA NUEVA DE 16 VIVIENDAS CON MUCHAS POSIBILIDADES. 4 PAREADAS Y 12 INDIVIDUALES. PARCELAS DE 160 A 368 METROS.
TODAS LAS CASAS CUENTAN CON UN MÍNIMO DE 125 METROS CONSTRUIDOS DISTRIBUIDOS EN GARAJE, BAJA Y PRIMERA.
SOLICITE INFORMACIÓN.

Ask the announcer for more details

last modified

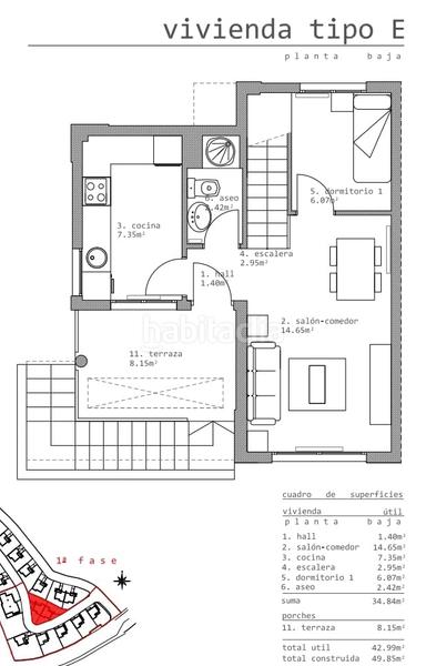
Space distribution

  • Floor area 105 m2
  • Land 231 m2
  • Office Kitchen: No

General features

  • Parking place
  • Whitout air-conditioning
  • Year built 2024
  • Close to public transport
  • Energy Certificate :
    Consumo:
    G
    999 kW h m2 / año
    Emisiones:
    G
    999 kg CO2 m2 / año
Ad : 34646000000286

Location

Cacicedo Calle la Central 4

Click on the map to navigate around it
260.000 € Ad price
2.039 €/m2€/m2 población
2.476 €/m2€/m2 of the ad
See €/m2 evolution in Camargo
Would you like us to notify you when we get ads like this one? Create your alert and we will notify you by email when a new ad appears or an existing ad has changed.
 

Contact RADIX

Ad reference habitaclia/540 13 9:

You will see the telephone number after sending your contact to the announcer to attend you.
You will see the phone number after you contact
Sending...