Evaluation saved!
Only you will see it
Comment saved!
Add your evaluation and/or a comment for this ad. You will only see your

Residential plot in Carrús Oeste Elche / Elx

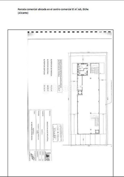
  • 717 m2
  • 1.792 €/m2

dificio en construcción

Se vende Edificio en construcción para invertir obteniendo una extraordinaria rentabilidad y/o emprender un negocio muy exitoso.
Este edificio en construcción y/o negocio en venta presenta una oportunidad lucrativa, ubicado dentro del triángulo comercial formado por Corté Inglés / Aljub - Media Markt / Carrefour, y adyacente a importantes autovías de Madrid-Murcia y Alicante-Valencia, esta propiedad se beneficia de una alta visibilidad y accesibilidad

Con una importante afluencia que ronda los 7 millones de visitantes por año, esta ubicación ofrece una excelente oportunidad de inversión. Ya sea que esté buscando completar la construcción del edificio o lanzar un nuevo negocio, esta propiedad presenta una perspectiva prometedora.
Estamos abiertos a discutir posibles proyectos comerciales y estamos dispuestos a considerar ofertas razonables. No pierda la oportunidad de capitalizar esta ubicación estratégica y éxito garantizado. Contáctenos para más detalles y explorar las posibilidades de inversión o desarrollo comercial.

1400 mts² repartidos en 4 plantas de 350 mts² cada una, construidos en una superficie de 717 mts² de terreno, siendo el edificio más alto con 17 metros de altura y con una estructura capaz de soportar hasta 500kg por mt2 y antisísmico, además cuenta con aparcamiento ilimitado y gratuito.

¡SIN DUDA UNA GRAN INVERSION!

Elche “mantiene un crecimiento poblacional sostenido y sostenible, indicador dinamismo socioeconómico y de la prosperidad y calidad de vida de nuestro municipio”, es una ciudad próspera y con calidad de vida, con un mercado de trabajo dinámico y, desde luego, un lugar donde se puede emprender un proyecto de vida con expectativas razonablemente positivas”.

last modified

Space distribution

  • Floor area 717 m2
Ad : 8905003129648

Location

Carrús Oeste

Click on the map to navigate around it
Would you like us to notify you when we get ads like this one? Create your alert and we will notify you by email when a new ad appears or an existing ad has changed.
 

Contact PREMIUM Servicios Inmobiliarios

Ad reference habitaclia/01531:

You will see the telephone number after sending your contact to the announcer to attend you.
You will see the phone number after you contact
Sending...