Evaluation saved!
Only you will see it
Comment saved!
Add your evaluation and/or a comment for this ad. You will only see your

Residential plot in Castell d´Aro

Carrer Cerdanya

  • 642 m2
  • 3.349 €/m2

Casa nueva de 4 habitaciones con entrega llave en mano, S' Agaró

Ubicada en uno de los entornos más atractivos de la Costa Brava, S’Agaró destaca por su ambiente tranquilo, su proximidad a la playa de Sant Pol y una excelente conexión por carretera. La zona ofrece servicios durante todo el año, además de una amplia propuesta gastronómica y cultural.

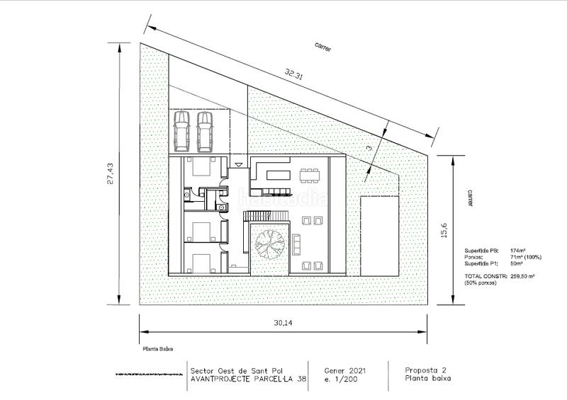
En el exclusivo entorno residencial de S’Agaró Nou se encuentra disponible la Parcela 38, con 642 m² de superficie y un proyecto residencial que propone una vivienda contemporánea de 254 m². La propuesta ha sido pensada para quienes valoran el diseño funcional y la calidad de vida cerca del mar.

La vivienda se distribuye en dos plantas y cuenta con cuatro dormitorios: tres en la planta principal y uno en la planta superior. Dispone de tres baños, siendo el de la planta superior en suite, y ofrece estancias amplias, luminosas y cuidadosamente distribuidas. Además, incorpora piscina privada y zona de aparcamiento con capacidad para dos vehículos.

Se entrega bajo la modalidad “llave en mano”, lo que implica que el precio abarca tanto la parcela como el diseño arquitectónico y la obra terminada. Una opción ideal para quienes desean evitar gestiones complejas y disfrutar de una vivienda nueva sin preocupaciones.

Con calificación energética A, esta propiedad apuesta por la eficiencia y el confort, integrando sostenibilidad y diseño en un solo espacio.

El proyecto Residencial S’agaró Nou incluye otras opciones de parcelas y casas en construcción.

Desde Walter Haus, estaremos encantados de acompañarle en cada paso del proceso.

Contacte con nosotros para más detalles o para concertar una visita sin compromiso.

last modified

Space distribution

  • Floor area 642 m2
Ad : 5612002809175

Location

Carrer Cerdanya

Click on the map to navigate around it
Would you like us to notify you when we get ads like this one? Create your alert and we will notify you by email when a new ad appears or an existing ad has changed.
 

Contact Walter Haus S.L.

Ad reference habitaclia/P0159V:

You will see the telephone number after sending your contact to the announcer to attend you.
You will see the phone number after you contact
Sending...