Evaluation saved!
Only you will see it
Comment saved!
Add your evaluation and/or a comment for this ad. You will only see your
9.000 € Advise me if it drops
it has dropped 500 €

Rent business premise in Dreta de l´Eixample Barcelona

  • 720 m2
  • 12,50 €/m2

Exclusivos locales con espectacular terraza en pleno Quadrat d’Or – Eixample Derecho, Barcelona

En el corazón del prestigioso Quadrat d’Or del Eixample Derecho, presentamos dos excepcionales locales comerciales a pie de calle, ubicados en una emblemática finca modernista de 1900, que destacan por su elegancia, amplitud y versatilidad.

Ambos espacios ofrecen la posibilidad de crear un único gran local de más de 700 m², ideal para showroom, galería, sede corporativa, centro de bienestar, centro deportivo o academia entre otros.

Dos locales que se pueden conectar. Cada local dispone de doble escaparate a la calle, con acceso directo desde la vía pública y también desde la majestuosa entrada principal de la finca. Además, cuentan con una espectacular terraza/jardín privado, un auténtico oasis de tranquilidad en pleno Eixample.

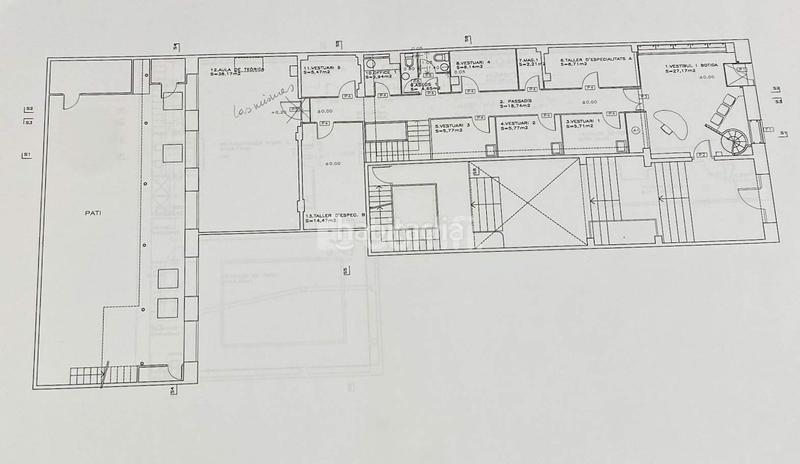
Los locales se distribuyen en dos plantas con techos altos, volta catalana y majestuosas columnas que aportan carácter y distinción:

Planta principal: amplios espacios diáfanos con gran luminosidad natural, doble escaparate a la calle y salida directa a la terraza interior.

Planta inferior: zona polivalente con baños, almacén y diversas estancias con luz y ventilación natural, comunicadas por escaleras interiores y posibilidad de incorporar montacargas o ascensor hidráulico.

Hay posibilidad de eliminar la separación entre plantas y crear un espacio con techos de gran altura y muy diáfano.

Las superficies totales combinadas alcanzan aproximadamente 700 m² construidos, con terrazas de uso privativo de casi 100 m².

Ubicados a tan solo dos calles del Passeig de Gràcia y Plaza Catalunya, estos locales gozan de una ubicación inmejorable, perfectamente comunicada y rodeada de las principales firmas, restaurantes y edificios emblemáticos de Barcelona.

Una oportunidad única para quienes buscan un espacio singular, lleno de historia y con infinitas posibilidades en una de las zonas más exclusivas de la ciudad.

last modified

Space distribution

  • Floor area 720 m2

General features

  • Year built 1900
  • Energy Certificate :
    Consumo:
    G
    999 kW h m2 / año
    Emisiones:
    G
    999 kg CO2 m2 / año
Ad : 42180000000373

Location

Dreta de l´Eixample Carrer Roger de Lluria

Click on the map to navigate around it
Would you like us to notify you when we get ads like this one? Create your alert and we will notify you by email when a new ad appears or an existing ad has changed.
 

Contact Comfi Homes

Ad reference habitaclia/COMFI 735461:

You will see the telephone number after sending your contact to the announcer to attend you.
You will see the phone number after you contact
Sending...