Evaluation saved!
Only you will see it
Comment saved!
Add your evaluation and/or a comment for this ad. You will only see your

Rent business premise in Centre Esplugues de Llobregat

  • 59 m2
  • 13,56 €/m2

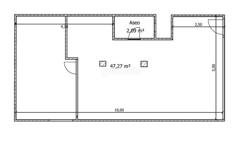
Local comercial de 50 metros en el Gall frente a los bonitos jardines de Pons i Termes, y junto a la carretera de Cornellá. Diáfano, con un gran escaparate.

Alquilamos este fantástico local diáfano en una zona ideal, de paso. Con un escaparate de 5 metros, una gran cristalera. Perfecto como despacho o negocio de servicio al público.

El local es diáfano, aunque actualmente, hay una zona de despacho separada por una pared de cristal.

En perfecto estado, de suelo, paredes, techo, luces. Instalación de cableado de datos y tomas de corriente en varios puestos.

Aseo reformado. Carpintería exterior de aluminio, suelos de parquet.

Si busca un local listo para entrar, con un buen escaparate y en una zoan de paso, no dude en visitarlo.

last modified

Space distribution

  • Floor area 59 m2

General features

  • Year built 1969
  • Energy Certificate :
    Consumo:
    G
    999 kW h m2 / año
    Emisiones:
    G
    999 kg CO2 m2 / año
Ad : 30106000000906

Location

Centre Carrer d'Eduard Toldrà

Click on the map to navigate around it
Would you like us to notify you when we get ads like this one? Create your alert and we will notify you by email when a new ad appears or an existing ad has changed.
 

Contact Sarria Properties Viviendas Con Encanto

Ad reference habitaclia/SPA1194 :

You will see the telephone number after sending your contact to the announcer to attend you.
You will see the phone number after you contact
Sending...