Evaluation saved!
Only you will see it
Comment saved!
Add your evaluation and/or a comment for this ad. You will only see your

Rent business premise in Fátima Vigo

  • 201 m2
  • 3,73 €/m2

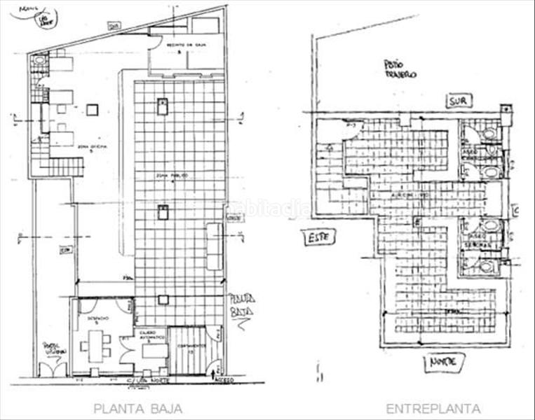
Alquiler local calle Vía Norte.

Local comercial calle Vía Norte de planta baja y entreplanta, acondicionado como oficina de servicio bancario. 2 aseos.......
Local comercial de 160 m2 en planta baja y 41,50 m2 en entreplanta, acondicionado como oficina de servicio bancario. Fachada: 7,5 m. Fondo: 17 m. Acceso directo a pie de calle
Precio: 170.400€.
Alquiler: 750€/mes.
Situada a pocos metros de la nueva estación Centro Comercial Vialia ESTACIÓN DE VIGO contará con 43.080 m² de uso lucrativo, los nuevos servicios ferroviarios del AVE y la terminal de autobuses de la ciudad. Su situación y arquitectura convierten el inmueble en un gran balcón hacia el mar. El uso ciudadano en la zona se verá reforzado con una amplia zona de restauración en la gran plaza pública de la cubierta que se prolongará hasta los 23.000 m². Incluirá restaurantes, zonas de ocio infantil y de descanso y escenarios para realizar conciertos al aire libre convirtiendo este complejo en un nuevo núcleo hostelero en el corazón del casco urbano.

last modified

Space distribution

  • Floor area 201 m2

General features

  • Whitout furnish
  • Whitout air-conditioning
  • Energy Certificate :
    Consumo:
    D
    279 kW h m2 / año
    Emisiones:
    D
    69 kg CO2 m2 / año
Ad : 31397000000433

Location

Fátima N/A

Click on the map to navigate around it
Would you like us to notify you when we get ads like this one? Create your alert and we will notify you by email when a new ad appears or an existing ad has changed.
 

Contact INMOBILIARIA AMIGO

Ad reference habitaclia/240:

You will see the telephone number after sending your contact to the announcer to attend you.
You will see the phone number after you contact
Sending...