Virtual visit
Evaluation saved!
Only you will see it
Comment saved!
Add your evaluation and/or a comment for this ad. You will only see your

Rent flat with heating in Casco Histórico de Vallecas Madrid

  • 63 m2
  • 4 hab.
  • 1 bath
  • 19,60 €/m2

¡ALTA DE SUMINISTROS GRATIS!


Excelente vivienda de cuatro dormitorios y un baño. Se encuentra en la 3ª planta de un edificio residencial. y cuenta con trastero. No dispone de ascensor. Situado en CASCO HISTORICO DE VALLECAS en el distrito de Villa de Vallecas.


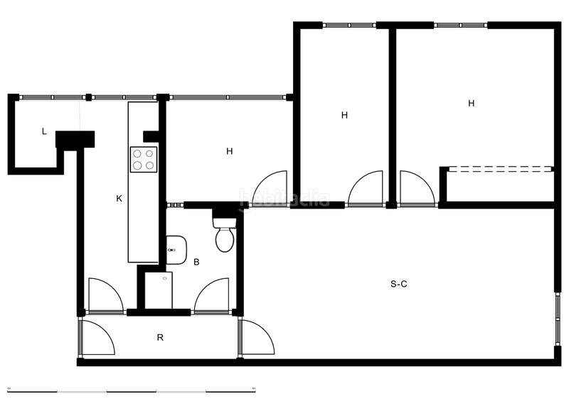
La vivienda se distribuye en cuatro dormitorios y , armarios empotrados, salón-comedor con acceso a terraza, cocina independiente y un baño.. Cuenta con cocina amueblada y equipada con muebles altos y bajos, vitrocerámica, horno y campana extractora. Dispone de suelos de gres en cocina, baño y en el resto de estancias. Dispone de calefacción.


Se encuentra ubicado en Casco historico de Vallecas, Villa de Vallecas (Sureste de Madrid). Cuenta con fácil acceso a través de las principales carreteras y buenas comunicaciones por transporte público. La parada de metro más cercana es Villa de Vallecas y se encuentra a menos de 10 minutos andando. La parada de autobús más cercana es Real de Arganda y se encuentra a menos de 5 minutos andando. La parada de taxi más cercana se encuentra a menos de 10 minutos andando.

En su entorno existen viviendas plurifamiliares de similares características. La zona cuenta con todo tipo de servicios básicos, el centro de salud más cercano se encuentra a 380 metros, el hospital más cercano se encuentra a 110 metros, existen 3 farmacias a menos de 300 metros, existen 3 colegios a menos de 300 metros. Además, a menos de 500 metros también puedes encontrar 3 supermercados, 5 bancos, una lavandería, una oficina de correos, una comisaría de policía.

La zona cuenta con una amplia oferta de entretenimiento con un teatro, 20 parques, bares, restaurantes y comercios a pocos minutos de la vivienda.

En cuanto al transporte privado, la zona dispone de parkings privados y aparcamiento en la calle. La vivienda tiene un fácil acceso por carretera y está bien comunicado a través de la Autovia del Este, Plaza Martinez Olmedilla y la Calle Real de Arganda.


Requisitos:
- 1 mes de fianza
- Seguro del hogar a la firma del contrato.
- Antigüedad laboral ininterrumpida superior a un año.
- No aparecer en ningún fichero de morosidad.
- Disponer de una ratio de solvencia* de entre un 30% y 35% dependiendo de la zona.
*Solo se tendrán en cuenta ingresos demostrables para acreditar el ratio

last modified

Space distribution

  • 4 rooms
  • Floor area 63 m2
  • 1 bath
  • Office Kitchen: No
  • Lumber room

General features

  • Heating
  • Whitout parking place
  • Whitout air-conditioning
  • floor number 3
  • Year built 1965
  • Energy Certificate :
    Consumo:
    E
    52 kW h m2 / año
    Emisiones:
    E
    137 kg CO2 m2 / año

Residents facilities

  • Whitout lift
Ad : 38251000005871

Location

Casco Histórico de Vallecas

Click on the map to navigate around it
1.235 € Ad price
38,57 €/m2€/m2 distrito
19,60 €/m2€/m2 of the ad
49% cheaper than the average*
How much would you like to pay?
See €/m2 evolution in Madrid (Villa de Vallecas)
Would you like us to notify you when we get ads like this one? Create your alert and we will notify you by email when a new ad appears or an existing ad has changed.
 

Contact Alquila Tu Hogar

Ad reference habitaclia/2001/20010001/101:

You will see the telephone number after sending your contact to the announcer to attend you.
You will see the phone number after you contact
Sending...