Favorito y comentario
Rent industrial building in Granvia LH Hospitalet de Llobregat (L´)
Main characteristics
- 1.973 m2
- 7,35 €/m2
Detailed information
Alquiler Nave en C Primer de Maig Poluig. Ind. Gran Sud L Hospitalet de Llobregat
DISPONIBILIDAD MES DE SEPTIEMBRE
Nave industrial en alquiler en Carrer Primer de Maig - L Hospitalet de Llobregat
¡Excelente imagen corporativa y ubicación estratégica!
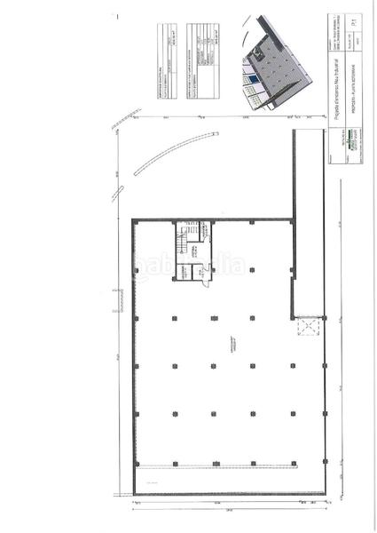
Superficies:
Planta Sótano: 657,88 m²
Planta Baja: 558,73 m²
Planta Altillo: 198,00 m²
Planta Primera: 558,73 m²
Superficie total construida: 1.973 m²
Características destacadas:
Nave tipo C con estructura de hormigón armado.
Altura libre de 7 metros.
1 acceso para vehículos pesados (puerta TIR) y 1 puerta seccional.
Acceso peatonal independiente.
Ascensor entre plantas.
Oficinas acondicionadas y salas de reuniones.
Aseos y vestuarios.
Instalación contra incendios: BIES, pulsadores, extintores.
Patio perimetral de maniobra.
30 plazas de aparcamiento privado.
Excelente visibilidad y presencia comercial.
Ubicación - Polígono Industrial consolidado y de alto valor estratégico:
Situada en el corazón de uno de los polígonos industriales más activos y consolidados de L Hospitalet de Llobregat, esta nave disfruta de un entorno dinámico y profesional, rodeado de empresas logísticas, tecnológicas, industriales y de servicios. Es una zona ideal para compañías que buscan combinar infraestructura moderna, buena imagen corporativa y proximidad a Barcelona ciudad.
El polígono cuenta con amplias calles para el tránsito de vehículos pesados, zonas de carga y descarga, y todos los servicios urbanos. La conectividad es excelente:
Acceso inmediato a la Gran Vía, Ronda Litoral y B-20.
A menos de 10 minutos del Aeropuerto de El Prat.
Bien comunicado por transporte público (metro, tren y autobuses).
A pocos minutos del puerto y del centro de Barcelona.
Una ubicación perfecta para empresas que buscan eficiencia operativa y una excelente conexión metropolitana.
Suministros de agua y luz dados de alta
Gastos de ibi y vados a cargo del arrendatario
Fianza 2 meses ( la propiedad pedirá fianza complementaria en función solvencia económica)
Honorarios 10% de una anualidad +21%iva
Contáctanos para más información o agendar una visita.
last modified
Space distribution
- Floor area 1973 m2
General features
- Year built 1993
one
Location
Granvia LH L´Hospitalet de Llobregat - Calle Primer de Maig