Evaluation saved!
Only you will see it
Comment saved!
Add your evaluation and/or a comment for this ad. You will only see your

Rent industrial building in número 3 de la zona franca 1 in Barcelona

  • 1.766 m2
  • 1 bath
  • 8,25 €/m2

Nave Industrial en Alquiler Zona Franca

La nave se encuentra situada el Polígono Industrial de la Zona Franca, su ubicación es privilegiada no solo por el fácil acceso a carreteras y autopistas, sino también por estar a 7km del aeropuerto, a 100m del puerto, y a 200m de la gran estación ferroviaria de mercancía.

Cuenta con fácil acceso desde la autovía C-31 y una buena comunicación con transporte público como las líneas L9 y L10 de metro.

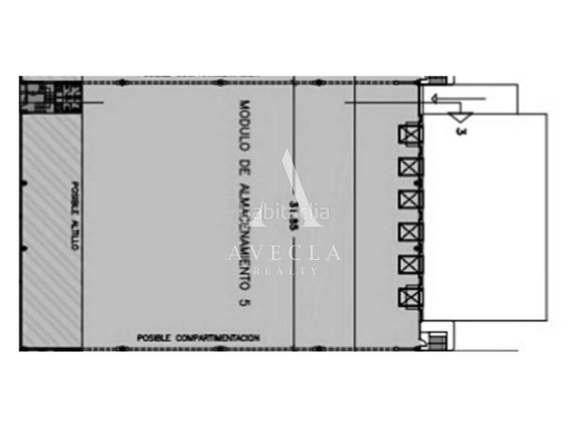
DESGLOSE DE SUPERFICIE:
Planta Baja: 1.528, 80m²
Planta altillo: 237,30m²
Altura: 11m
Superficie Total: 1.766, 10m²

CARACTERÍSTICAS:
Módulo diáfano de 48x31,85m
6 muelles a 1,10m de altura con rampa niveladora.
1 rampa acceso vehículos
Dotado de equipos de detección y extinción de incendios.
Instalación de Exutorios y Sprinklers
Servicios Completos
Iluminación LED en oficina y nave
Oficina equipada.
Acceso directo a Rondas.

UBICACIÓN:
ZAL Port Barcelona es una plataforma logística ubicada dentro del Puerto de Barcelona, uno de los enclaves más importantes del Corredor del Mediterráneo, y está a tan solo 2km del aeropuerto y a 10 minutos del centro de la ciudad.
Comunicaciones:
Acceso directo desde Ronda Litoral (B-10) salida 17-18A.
Bus: 23 desde Plaza España, conexión con las líneas 1 y 3 de metro.
Metro: L9 parada Parc Logístic.

last modified

Space distribution

  • Floor area 1766 m2
Ad : 28314004370276

Location

Zona Franca - Port Número 3 de la Zona Franca 1

Click on the map to navigate around it
Would you like us to notify you when we get ads like this one? Create your alert and we will notify you by email when a new ad appears or an existing ad has changed.
 

Contact AVECLA REALTY

Ad reference habitaclia/11102:

You will see the telephone number after sending your contact to the announcer to attend you.
You will see the phone number after you contact
Sending...