Evaluation saved!
Only you will see it
Comment saved!
Add your evaluation and/or a comment for this ad. You will only see your

Rent office space in Almeda - El Corte Inglés Cornellà de Llobregat

  • 731 m2
  • 9,50 €/m2

Oficinas con espacios únicos exclusivos, personalizables y muy luminosos, ubicadas en el edificio París, un lugar emblematico dentro del parque empresarial CityPark en Cornellà de Llobregat.
CityPark está formado por 12 edificios independientes y cuenta con una gran variedad de servicios y comodidades, zonas ajardinadas privadas, restaurante / cafetería y parking privado.

CONDICIONES ECONÓMICAS:
Renta: 9,50 €/m³/mes.
Gastos: 3,28 €/m²/mes.

CARACTERÍSTICAS:
Fachada muro cortina.
Suelo técnico.
Superficie diáfana.
Fibra óptica.
Zonas comunes recién reformadas.
Falso techo con luminarias LED.
2 núcleos de baños por planta.
Ascensor.
Climatización frío/calor.
Servicio de conserjería y vigilancia 364/24 horas.
Zonas comunes ajardinadas.
POSIBILIDAD DE ROTULAR CON FACHADA RONDA DE DALT.

COMUNICACIONES:
Muy próximo al acceso S-15 de la Ronda de Dalt dirección Aeropuerto, Barcelona y Francia.
Bus: L12 – L52 – L82
Metro: L8 – L5 – L1
FCG: parada Almeda - L’Hospitalet Av. Carrilet.
CityPark cuenta con fácil acceso al centro de Barcelona y su puerto, a través del Ronda de Dalt, y a solo nueve minutos del aeropuerto de El Prat, el edificio supone una oportunidad única para las empresas que buscan mejorar el bienestar de los empleados y mejorar la vida laboral.

last modified

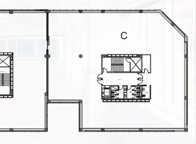
Space distribution

  • Floor area 731 m2

General features

  • Whitout parking place
  • Whitout furnish
  • Whitout air-conditioning
  • floor number 3
  • Energy Certificate :
    Consumo:
    C
    48 kW h m2 / año
    Emisiones:
    C
    220 kg CO2 m2 / año

Residents facilities

  • Lift
Ad : 3097004298458

Location

Almeda - El Corte Inglés N/A

Click on the map to navigate around it
Would you like us to notify you when we get ads like this one? Create your alert and we will notify you by email when a new ad appears or an existing ad has changed.
 

Contact Activa Properties

Ad reference habitaclia/21650:

You will see the telephone number after sending your contact to the announcer to attend you.
You will see the phone number after you contact
Sending...