Evaluation saved!
Only you will see it
Comment saved!
Add your evaluation and/or a comment for this ad. You will only see your

Rent office space in Tres Torres Barcelona

  • 4.252 m2
  • 5 bathrooms
  • 9,37 €/m2

Espacio para uso sanitario en alquiler en Sant Gervasi

Espacio ideal para establecer consultorios médicos y clínicas ambulatorias en la prestigiosa zona alta de Barcelona. Situado en los bajos de la antigua sede de la Clínica Dexeus, la zona es conocida por albergar consultorios médicos y quirófanos de todo tipo. Una de sus mejores características es su excelente ubicación.

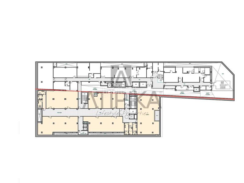
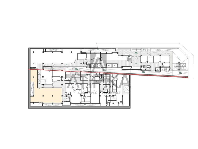
Cuenta con una impresionante superficie de más de 4.252 m² construidos, distribuidos en cuatro plantas conectadas por dos ascensores y con dos accesos principales, así como acceso para ambulancias. El estado actual del local permite a los arrendatarios adaptarlo según las necesidades de su actividad médica ideal. Las instalaciones tienen la capacidad de cubrir las distintas especialidades de medicina, con espacios adaptados para consutorios médicos y/o quirófanos de día: traumatología, dermatología, oftalmología, etc.

Este edificio se encuentra estratégicamente ubicado, ya que en su área conviven los principales y más prestigiosos grupos médicos y hospitalarios de la ciudad, ofreciendo servicios integrados de alta calidad.

- 4.252 m²
- 4 plantas
- 2 ascensores
- 2 entradas principales
- Recepción
- Consultorios, despachos y zonas de reuniones
- Acceso de ambulancias
- Espacios adaptados para consultorios médicos y/o quirófanos de día: traumatología, dermatología, oftalmología, etc.
- 7 quirófanos
- Zonas de recuperación (8 pacientes)
- Zonas de espera
- Equipamientos para empleados (lavabos, vestuarios, zonas comunes)
- Parking cercano
- IBI no incluido

ZONA: Sarrià - Sant Gervasi - Les Tres Torres. TRANSPORTE PÚBLICO: FGC, Bus, Bicing.

last modified

Space distribution

  • Floor area 4252 m2
  • Terrace 16 m2

General features

  • Whitout parking place
  • Whitout furnish
  • Energy Certificate :
    Consumo:
    G
    999 kW h m2 / año
    Emisiones:
    G
    999 kg CO2 m2 / año

Residents facilities

  • Lift
Ad : 9873002103471

Location

Tres Torres Bonanova

Click on the map to navigate around it
Would you like us to notify you when we get ads like this one? Create your alert and we will notify you by email when a new ad appears or an existing ad has changed.
 

Contact ATIPIKA Lifestyle Properties

Ad reference habitaclia/17339:

You will see the telephone number after sending your contact to the announcer to attend you.
You will see the phone number after you contact
Sending...