Evaluation saved!
Only you will see it
Comment saved!
Add your evaluation and/or a comment for this ad. You will only see your

Business premise in La Gavarra Cornellà de Llobregat

  • 146 m2
  • 682 €/m2

¡Local Comercial en Venta en Cornella - Zona La Gavarra!

La Casa Agency vende en exclusiva este local comercial de 146 m² en la mejor zona de Cornellà, ideal para emprendedores e inversores.

Características principales:

Superficie: 146 m² en planta diáfana, lista para entrar

Baños: 2, bien distribuidos

Extras: Patio trasero que aporta luz y ventilación natural

Ubicación estratégica: Muy cerca del tranvía, paradas de autobús y a pocos metros del metro

Ventajas:

Distribución funcional que permite adaptarlo a distintos tipos de negocio

Excelente comunicación y visibilidad en una de las zonas más transitadas de Cornellà

Patio trasero ideal para uso propio o ampliación de actividad

Importante:
Las fotos mostradas son renders; se recomienda solicitar imágenes originales del inmueble.

¡No pierdas esta oportunidad! Contáctanos para agendar tu visita y conocer todo el potencial de este local con La Casa Agency.

last modified

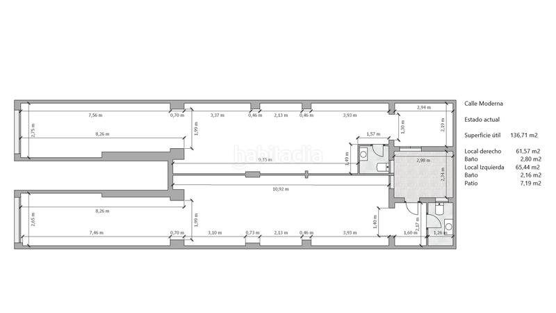
Space distribution

  • Floor area 146 m2

General features

  • Energy Certificate :
    Consumo:
    C
    25 kW h m2 / año
    Emisiones:
    C
    222 kg CO2 m2 / año
Ad : 26096004035521

Location

La Gavarra Carrer de Cornellà Modern

Click on the map to navigate around it
Would you like us to notify you when we get ads like this one? Create your alert and we will notify you by email when a new ad appears or an existing ad has changed.
 

Contact LA CASA AGENCY CORNELLA

Ad reference habitaclia/LCB35193-2:

You will see the telephone number after sending your contact to the announcer to attend you.
You will see the phone number after you contact
Sending...