Evaluation saved!
Only you will see it
Comment saved!
Add your evaluation and/or a comment for this ad. You will only see your

Chalet with heating parking pool in Cabo de las Huertas Alicante

  • 620 m2
  • 6 hab.
  • 6 bathrooms
  • 6.129 €/m2

Exclusiva Villa en Primera Línea de Mar en Cabo Huertas – Lujo, Ubicación y Vistas Incomparables.

Descubre esta impresionante villa de lujo en primera línea de mar en Cabo Huertas, un enclave privilegiado donde el Mediterráneo se convierte en tu paisaje diario. Con acceso directo al mar y vistas panorámicas inigualables, esta propiedad es una verdadera joya arquitectónica que combina elegancia, confort y una ubicación excepcional.

Un exterior de ensueño para disfrutar todo el año; la villa se encuentra en una amplia parcela privada con una espectacular piscina infinity que se funde con el horizonte. Sus amplias zonas ajardinadas, múltiples porches y una exclusiva zona de barbacoa crean el escenario perfecto para reuniones inolvidables con familiares y amigos, todo ello acompañado por los atardeceres más impresionantes de Alicante.

Espacios amplios y diseño sofisticado; con 620 m² distribuidos en tres plantas y 1.060 m2, esta villa ha sido diseñada para ofrecer máximo confort y privacidad:

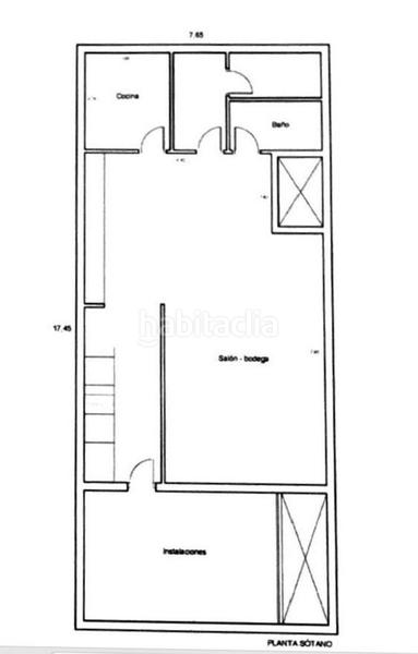
Planta sótano: Un refinado espacio social con salón-comedor-bodega, cocina, biblioteca, aseo de cortesía y trastero.

Planta principal: Elegante salón-comedor con chimenea, amplia cocina, habitación con baño para el servicio y acceso a las terrazas exteriores.

Planta superior: Cuatro espaciosas habitaciones, tres de ellas en suite, diseñadas para disfrutar del descanso con el máximo lujo.

Equipamiento de alto nivel; la villa cuenta con acabados y materiales de primera calidad, incluyendo:
? Suelos de mármol y tarima, calefacción por suelo radiante en la planta principal y radiadores en la planta superior.
? Aire acondicionado por conductos, para un confort óptimo en cualquier estación.
? Chimenea, ideal para crear un ambiente cálido y acogedor en invierno.
? Sistema de seguridad renovado y actualizado, garantizando máxima tranquilidad.
? Garaje con capacidad para dos coches.
Ubicación privilegiada; situada en uno de los rincones más exclusivos de Alicante, esta villa ofrece la combinación perfecta de privacidad y acceso a todos los servicios. A solo 10 minutos del centro de Alicante, disfrutarás de la tranquilidad del entorno sin renunciar a la comodidad de la ciudad.
Con un centro comercial con todo tipo de tiendas y cafeterías a pocos pasos, así como parada de bus y Tranvia.
Si buscas una propiedad única, con una ubicación inmejorable, vistas de ensueño y calidades excepcionales, esta villa en Cabo Huertas es tu hogar ideal. ¡Contáctanos para una visita y enamórate de esta maravilla frente al mar!

last modified

Space distribution

  • 6 rooms
  • Floor area 620 m2
  • Land 1060 m2
  • 6 bathrooms
  • Lumber room

General features

  • Heating
  • Particular pool
  • Parking place
  • Year built 1995
  • Close to public transport
  • Energy Certificate :
    Consumo:
    D
    168 kW h m2 / año
    Emisiones:
    C
    34 kg CO2 m2 / año
Ad : 10442004367650

Location

Cabo de las Huertas Avenida de la Costa Blanca

Click on the map to navigate around it
3.800.000 € Ad price
3.908 €/m2€/m2 distrito
6.129 €/m2€/m2 of the ad
How much would you like to pay?
See €/m2 evolution in Alicante (Playa de San Juan-El Cabo de las Huertas)
Would you like us to notify you when we get ads like this one? Create your alert and we will notify you by email when a new ad appears or an existing ad has changed.
 

Contact RESIDE INMOBILIARIA

Ad reference habitaclia/Chalet_Cabo_Huertas_:

You will see the telephone number after sending your contact to the announcer to attend you.
You will see the phone number after you contact
Sending...