Favorito y comentario
Chalet with heating parking pool in El Tossal-Bello Horizonte Nucia (la)
Main characteristics
- 227 m2
- 5 hab.
- 4 bathrooms
- 3.502 €/m2
Detailed information
Elegancia y Confort en La NucíaUbicada en la tranquilizadora zona de Bello Horizonte, esta magnífica villa de cinco habitaciones es el epítome de la comodidad y el estilo. A solo unos minutos de las encantadoras playas de la Costa Blanca, esta propiedad ofrece un refugio perfecto para aquellos que buscan disfrutar del sol y la paz de la región de Alicante.
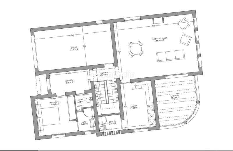
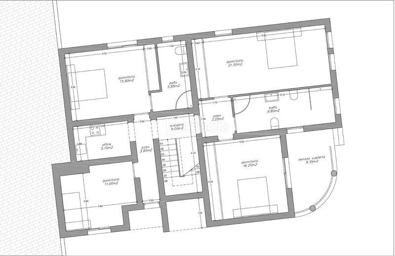
Espacios Amplios y AcogedoresCon un área construida de 227 metros cuadrados, cada rincón de esta villa ha sido cuidadosamente diseñado para maximizar la luz natural y el confort. La disposición inteligente de las habitaciones incluye cinco dormitorios amplios y cuatro baños, proporcionando espacio suficiente para familias numerosas o para aquellos que disfrutan de recibir huéspedes.
Comodidades ModernasLa villa está equipada con aire acondicionado frío/calor, asegurando una temperatura ideal durante todo el año. El sistema de calefacción complementa esta característica, proporcionando un ambiente cálido y acogedor en los meses más frescos. Con una cocina independiente bien equipada, este hogar ofrece un espacio perfecto para explorar la gastronomía local y disfrutar de comidas en familia.
Exteriores de EnsueñoEl extenso terreno de 729 metros cuadrados ofrece un jardín exuberante y bien cuidado, complementado por una piscina privada que invita a relajarse y a disfrutar de los días soleados. Un jacuzzi exterior proporciona un toque de lujo, ideal para disfrutar de momentos de tranquilidad al final del día. La propiedad también cuenta con varias terrazas, algunas cubiertas, que permiten disfrutar de las vistas y el aire fresco en cualquier momento.
Aspectos AdicionalesLa villa también incluye características como un aparcamiento privado, un salón con acogedora chimenea y un trastero que añade conveniencia a la vida diaria. Las ventanas de doble acristalamiento y el diseño de la parcela cerrada garantizan privacidad y seguridad, mientras que la ducha exterior es perfecta para el uso después de un día de piscina.
Ubicación IdealSituada en La Nucía, esta propiedad ofrece acceso a una variedad de servicios y actividades recreativas, haciendo de este chalet no solo un hogar, sino un estilo de vida. Las tranquilas calles de Bello Horizonte ofrecen un ambiente sereno, mientras que la proximidad a Alicante brinda oportunidades culturales, gastronómicas y de entretenimiento.
Esta villa es un verdadero hallazgo para aquellos que buscan un refugio cómodo y elegante en uno de los destinos más deseados de la Costa Blanca. Un lugar donde cada día puede ser disfrutado al máximo.
last modified
Space distribution
- 5 rooms
- Floor area 227 m2
- Land 729 m2
- 4 bathrooms
- Lumber room
General features
- Heating
- Particular pool
- Parking place
- Air-conditioning
- Year built 1999
one
Location
El Tossal-Bello Horizonte
