Evaluation saved!
Only you will see it
Comment saved!
Add your evaluation and/or a comment for this ad. You will only see your

Country house with parking pool in Cap Martí - El Tossalet - Pinomar Xàbia

  • 152 m2
  • 3 hab.
  • 2 bathrooms
  • 5.592 €/m2

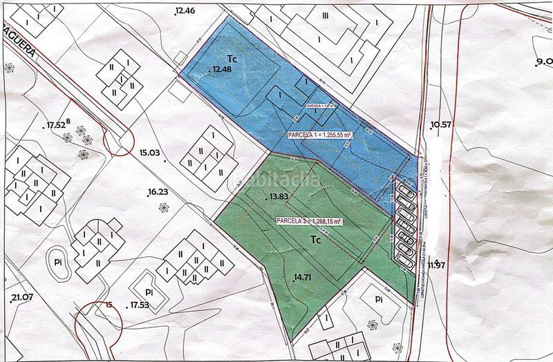
Parcela de 2.600 m2 con casa y posibilidad de división en dos parcelas edificables
Esta parcela se encuentra a muy poca distancia de la playa de arena de Jávea y ofrece una excelente oportunidad de inversión. La parcela se puede dividir perfectamente en dos parcelas edificables independientes de unos 1.300 m2 cada una, aptas para realizar dos villas de lujo.
Actualmente, la parcela contiene una villa de una sola planta con una superficie construida de 152 m². La propiedad cuenta con un salón con cocina abierta, un segundo salón-comedor con cocina cerrada, tres dormitorios, dos baños y un patio con trastero.
Esta parcela se encuentra a poca distancia de la playa de arena de Jávea y goza de una excelente ubicación cerca de todos los servicios. Supermercados, restaurantes, consultas médicas, instalaciones deportivas y otras necesidades diarias se encuentran a poca distancia. Esta ubicación combina la privacidad con la comodidad de una ubicación céntrica.

last modified

Space distribution

  • 3 rooms
  • Floor area 152 m2
  • Land 2600 m2
  • 2 bathrooms
  • Lumber room

General features

  • Particular pool
  • Parking place
  • Whitout air-conditioning
  • Energy Certificate :
    Consumo:
    G
    999 kW h m2 / año
    Emisiones:
    G
    999 kg CO2 m2 / año
Ad : 28548000002672

Location

Cap Martí - El Tossalet - Pinomar

Click on the map to navigate around it
850.000 € Ad price
3.676 €/m2€/m2 población
5.592 €/m2€/m2 of the ad
How much would you like to pay?
See €/m2 evolution in Xàbia
Would you like us to notify you when we get ads like this one? Create your alert and we will notify you by email when a new ad appears or an existing ad has changed.
 

Contact ARZUAGA INMOBILIAIRA

Ad reference habitaclia/AR55218:

You will see the telephone number after sending your contact to the announcer to attend you.
You will see the phone number after you contact
Sending...