Favorito y comentario
Flat 107m2 in ingeniero alejandro mendizabal kalea 11 in Vitoria - Gasteiz
Main characteristics
- from 107 m2
- 4 hab.
- 2 bathrooms
- 3.832 €/m2

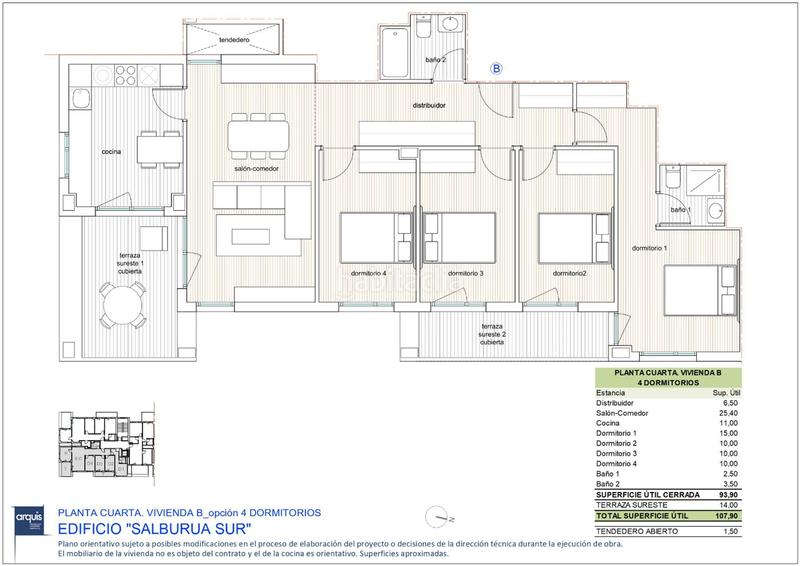
Edificio Salburua Sur
Esta promoción tiene 3 tipos de homes See property developmentDetailed information
Situado en c/ Ingeniero Alejandro Mendizabal -Nueva edificación, en una zona completamente consolidada con todos los servicios
La características principales del Edificio Salburua Sur, son sus grandes terrazas de 15 a 20 m² orientadas a Sur, Este y Oeste, así como las grandes terrazas solárium de más de 70 m² en áticos.
Trasteros de 12 m2 en planta baja y plazas de garaje dobles.
Una de las ventajas del Edificio es la cercanía a colegios nuevos de Salburua, ya sea el colegio Errekabarri Salburua o el nuevo colegio de educación secundaria, a escasos 200m.
Asimismo está ubicado muy cerca de todos los servicios: Centro Cívico, Centro de Salud, la zona comercial de Bulevar de Salburua y el Centro Comercial con múltiples supermercados.
Con la parada de tranvía junto al Centro Cívico, el edificio queda bien conectado con el Centro, ya sea con transporte público o caminando.
last modified
Space distribution
- 4 rooms
- Floor area 107 m2
- Terrace 14 m2
- 2 bathrooms
- Office Kitchen: No
- Lumber room
General features
- Whitout parking place
- Whitout air-conditioning
- floor number 4
one
Location
Salburua - Arantzabela Ingeniero Alejandro Mendizabal Kalea 11

Comparative data
It belongs to the property development Edificio Salburua Sur

- Piso
- 91 m2
- 3 hab
- 355.000 €
- view the advertisement
- Piso
- 107 m2
- 4 hab
- 400.000 €
- view the advertisement