Evaluation saved!
Only you will see it
Comment saved!
Add your evaluation and/or a comment for this ad. You will only see your
Opportunity 339.700 € Advise me if it drops

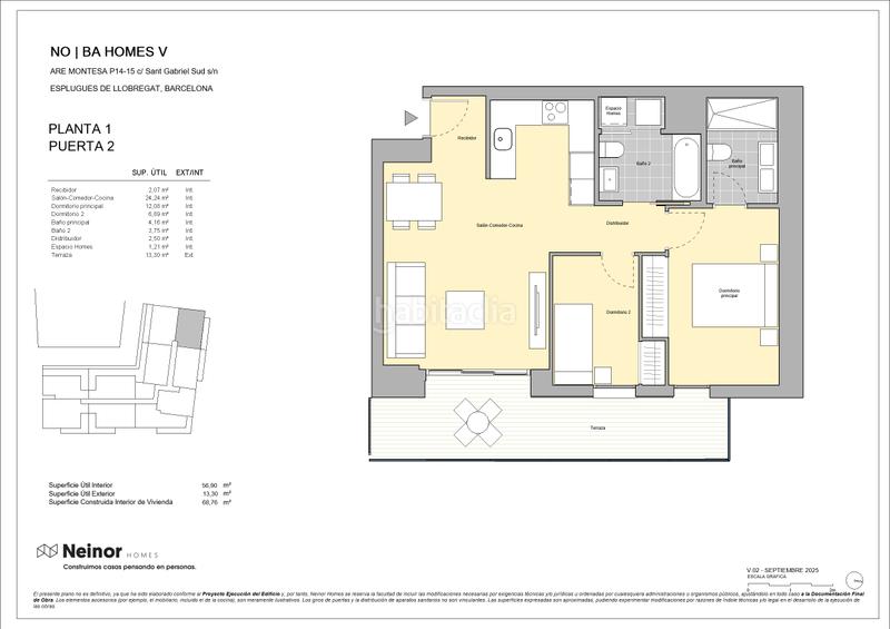
Flat 69m2 with heating parking in La Plana Esplugues de Llobregat

  • from 69 m2
  • 2 hab.
  • 2 bathrooms
  • 4.923 €/m2
NO|BA Homes V
It belongs to the property development

NO|BA Homes V

Esta promoción tiene 5 tipos de homes See property development

OBRAS INICIADAS. Nueva promoción de viviendas de 2, 3 y 4 dormitorios situada entre la Calle Sant Gabriel y la prolongación de La Rambla del Carme de Esplugues de Llobregat. Próxima parada línea 3 de metro. A 10 minutos de Barcelona.

NO | BA Homes V es un conjunto residencial compuesto por 90 viviendas, 2 locales comerciales, 98 garajes para vehículos, 90 trasteros y 45 plazas de garaje para motocicletas.

Las 90 viviendas cuentan con 2, 3 o 4 dormitorios, distribuidas en planta baja más 4 alturas y planta baja más 14 alturas, todas con acabados de alta calidad. Este conjunto residencial incluye una amplia zona Chill Out en la azotea de la planta 15, con magníficas vistas, un gimnasio exterior en la planta 5 para ejercitarse al aire libre y un taller de bicicletas en el garaje.

Ubicado en el sector Montesa, Esplugues de Llobregat este proyecto se caracteriza por sus fachadas modernas y cálidas, construidas con materiales sostenibles que favorecen el ahorro energético y proporcionan bienestar y confort para toda la familia. El precio de la vivienda no incluye el parking ni el trastero.

last modified

Space distribution

  • 2 rooms
  • Floor area 69 m2
  • Terrace 13 m2
  • 2 bathrooms
  • Office Kitchen: No
  • Lumber room

General features

  • Heating
  • Parking place
  • Air-conditioning
  • floor number 1
  • Energy Certificate :
    Consumo:
    A
    3 kW h m2 / año
    Emisiones:
    A
    19 kg CO2 m2 / año

Residents facilities

  • Lift
Ad : 56269000000102

Location

La Plana Carrer de Sant Antoni Mª Claret

Click on the map to navigate around it
339.700 € Ad price
4.564 €/m2€/m2 población
4.923 €/m2€/m2 of the ad
See €/m2 evolution in Esplugues de Llobregat
Would you like us to notify you when we get ads like this one? Create your alert and we will notify you by email when a new ad appears or an existing ad has changed.
 

It belongs to the property development NO|BA Homes V

Esplugues de Llobregat - Carrer de Sant Antoni Mª Claret
Promoción NO|BA Homes V Esplugues de Llobregat - Carrer de Sant Antoni Mª Claret from 332.700 € See property development
Other types of houses in this property development

Contact Neinor Homes

Ad reference habitaclia/Vivienda - Planta 1:

You will see the telephone number after sending your contact to the announcer to attend you.
You will see the phone number after you contact
Sending...