Favorito y comentario
Ground floor with pool in L´Albir Alfàs del Pi (l´)
Main characteristics
- 80 m2
- 2 hab.
- 2 bathrooms
- 6.500 €/m2
Detailed information
Localizados en una amplia parcela en una ubicación privilegiada de la zona, los inmuebles aquí ofrecen una experiencia de vida de lujo a poca distancia de la playa y del centro urbano, asegurando tanto tranquilidad como privacidad. Los jardines, originalmente creados en 1963, han sido meticulosamente renovados para proporcionar espacios verdes que resultan en un ambiente sereno. Los apartamentos se caracterizan por contar con extensas áreas verdes y generosas terrazas, brindando vistas al mar y al Parque Natural de Sierra Helada.
Las residencias están diseñadas con un nivel de detalle excepcional, con precios que oscilan entre 500 000 € y 850 000 €, ofreciendo opciones de 2 a 3 dormitorios y superficies que varían entre 81 m² y 225 m². Estas viviendas han sido concebidas para garantizar una vida moderna y confortable.
El vivir aquí proporciona una experiencia similar a la de un resort, sin necesidad de salir de la urbanización. La comunidad cuenta con una piscina cubierta climatizada, varias piscinas exteriores, un gimnasio totalmente equipado y una sauna. Además, se ofrecen servicios de conserjería, canchas de tenis y pádel integradas en el entorno natural, así como áreas de yoga y un jardín dedicado al cultivo de frutas y hortalizas.
Al residir en Alfaz del Pi, se disfruta de un entorno único marcado por su proximidad al mar y una vida urbana enriquecedora. Esta ubicación ofrece un estilo de vida que une lo mejor de la naturaleza con las comodidades modernas, creando un ambiente perfecto para aquellos que buscan un refugio tranquilo sin renunciar al confort.
last modified
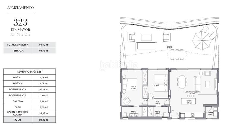
Space distribution
- 2 rooms
- Floor area 80 m2
- 2 bathrooms
General features
Residents facilities
- Lift
- Shared swimming pool
one
Location
L´Albir
