Evaluation saved!
Only you will see it
Comment saved!
Add your evaluation and/or a comment for this ad. You will only see your

House with heating in Centre Rubí

  • 146 m2
  • 4 hab.
  • 3 bathrooms
  • 3.116 €/m2

CASA DE OBRA NUEVA EN EL CENTRO DE RUBÍ CON AEROTERMIA Y PLACAS SOLARES FOTOVOLTAICAS.

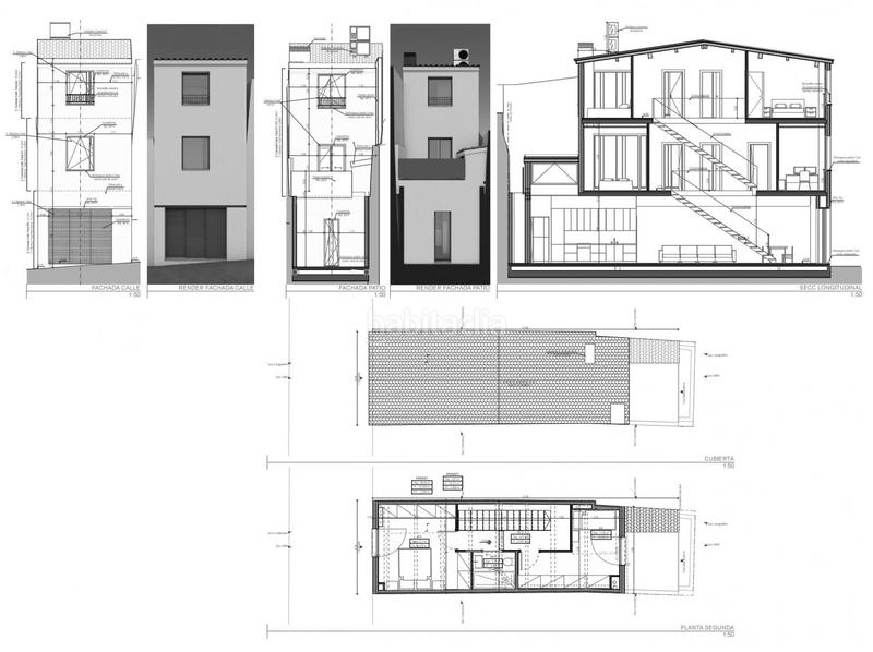
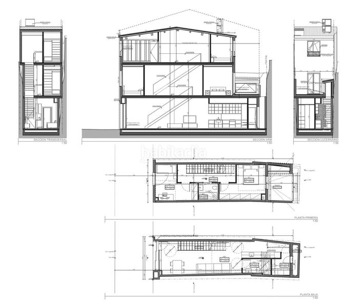
La vivienda tiene una superficie de 146,14 m² y se distribuye en 4 habitaciones de 13,15 m², 11,31 m², 11,82 m² y 15,10 m². Dispone de 3 baños completos con ducha, un amplio comedor de 31,24 m² con cocina tipo office, despensa, lavadero y terraza.

Cuenta con acabados de alta calidad como puertas lacadas en blanco, suelos de porcelánico y parquet AC5, y escaleras de madera de roble. La climatización incluye calefacción por conductos en la planta baja y aire acondicionado Split (frío y calor) en el resto de la vivienda.

Además, las ventanas son de aluminio con puente térmico, y la propiedad dispone de una puerta blindada y la posibilidad de instalar un ascensor. También cuenta con placas solares fotovoltaicas, lo que permite un ahorro energético significativo.

Distribución:

• Planta baja: Amplio comedor de 31,24 m² con cocina office, despensa, lavadero y baño de 4,14 m² con moqueta. Calefacción por conductos.
• Primera planta: Dos habitaciones de 13,15 m² y 11,31 m², una de ellas con acceso a terraza de 8 m², y un baño con plato de ducha.
• Segunda planta: Dos habitaciones de 11,82 m² y 15,10 m², baño con plato de ducha 3,28m2.

Vivienda ideal para familias en una zona tranquila y bien comunicada. ¡No pierdas esta gran oportunidad y ven a verlo sin compromiso!

Calidades:

• Vivienda autónoma por si sola con placas solares fotovoltaicas.
• Aluminio con puente rotura térmica 3 vidrios
• Suelos de porcelanico y parquet AC5
• Puertas lacadas blancas
• Escaleras de madera de roble
• Calefacción por conducto en la planta baja
• Aire acondicionado Split frío y calor
• Aerotermia para agua sanitaria
• Fibra óptica de datos independiente en toda la vivienda,
• Placas solares fotovoltaicas
• Posibilidad de ascensor

La superficie de la vivienda ha sido facilitada por el propietario, consultada en la Sede Electrónica de Catastro, pudiendo haber alguna variación con la superficie real.

En el precio ofertado de venta, no están incluidos los gastos de compraventa: notario, registro, gestoría, ITP (Impuesto de Transmisiones Patrimoniales) o gastos bancarios que pudieran generarse.

Ref.: 60651
ZONA: CENTRO (RUBÍ)

Si tienes alguna pregunta, deseas ir a visitarla, no dudes en contactar con nosotros

¡TE ESPERAMOS!

last modified

Space distribution

  • 4 rooms
  • Floor area 146 m2
  • 3 bathrooms

General features

  • Heating
  • Whitout parking place
  • Air-conditioning
  • Energy Certificate :
    Consumo:
    G
    999 kW h m2 / año
    Emisiones:
    G
    999 kg CO2 m2 / año
Ad : 51478000000035

Location

Centre

Click on the map to navigate around it
455.000 € Ad price
2.274 €/m2€/m2 población
3.116 €/m2€/m2 of the ad
See €/m2 evolution in Rubí
Would you like us to notify you when we get ads like this one? Create your alert and we will notify you by email when a new ad appears or an existing ad has changed.
 

Contact FINCAS GIROL

Ad reference habitaclia/27C8720:

You will see the telephone number after sending your contact to the announcer to attend you.
You will see the phone number after you contact
Sending...