Evaluation saved!
Only you will see it
Comment saved!
Add your evaluation and/or a comment for this ad. You will only see your
545.000 € Advise me if it drops
it has dropped 55.000 €

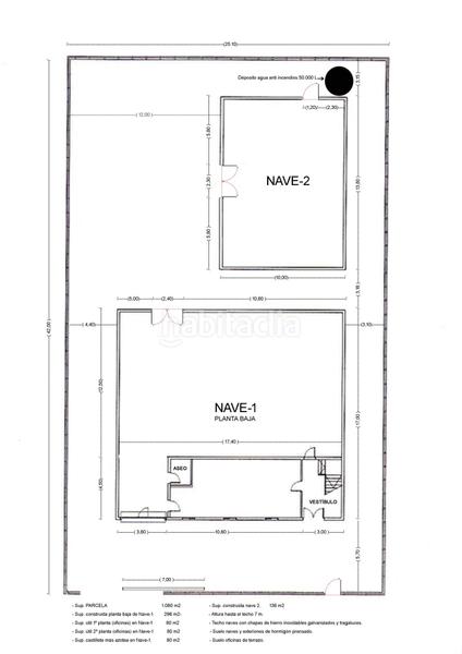
Industrial building in Pisa Mairena del Aljarafe

  • 1.080 m2
  • 505 €/m2

DOS NAVES INDUSTRIALES construidas en una misma parcela en una superficie de 1.080 m2 en el Polg. Ind. PISA, en Mairena del Aljarafe de Sevilla. La parcela cuenta con un edificio de 3 plantas más azotea y otra nave independiente de 138 m2 en el fondo de la parcela. La planta baja del edificio consta de: nave de 296 m2, la cual incluye, 1aseo, y un compartimento de 80 m2 usado actualmente como laboratorio y vestíbulo con acceso a nave y plantas superiores. Ambas naves tienen una altura hasta el techo de 7 m.

La primera y segunda planta constan de oficinas compartimentadas y aseos de 80 m2 cada una y en la última planta un castillete con azotea visitable.. (ver plano adjunto).
. Alimentación de corriente eléctrica monofásica y trifásica.
. Puertas acceso para carga y descarga en ambas naves más otras puertas de servicio.
. Suelo de hormigón prensado en toda la parcela y naves.
. Techo mediante placas metálicas de hierro galvanizado y tragaluces.
. Sistema de antincendios mediante mangueras y depósito de agua de 50.000 L.
. Aire acondicionado y aseos en las tres plantas.
. Plazas de aparcamiento techado al fondo de la parcela.

Informamos a nuestros clientes compradores que el precio de venta no incluye lo siguiente: Honorarios de la agencia inmobiliaria, Impuestos (I.T.P., I.V.A. o A.J.D., en su caso) ni otros gastos de la compraventa (gastos de Registro de la Propiedad, Notaría, Gestoría ni de posible Financiación). Documento F.I.S. a disposición del consumidor según Decreto 218/2005 Junta de Andalucía.

last modified

Space distribution

  • Floor area 1080 m2

General features

  • Year built 1996
Ad : 22134000005692

Location

Pisa

Click on the map to navigate around it
Would you like us to notify you when we get ads like this one? Create your alert and we will notify you by email when a new ad appears or an existing ad has changed.
 

Contact INMOBILIARIA SEVILLA 2000

Ad reference habitaclia/MA80963:

You will see the telephone number after sending your contact to the announcer to attend you.
You will see the phone number after you contact
Sending...