Virtual visit
Evaluation saved!
Only you will see it
Comment saved!
Add your evaluation and/or a comment for this ad. You will only see your
Opportunity 930.000 € Advise me if it drops

Semi detached house with heating parking in Roses-Castellbell Sant Feliu de Llobregat

  • 240 m2
  • 4 hab.
  • 3 bathrooms
  • 3.875 €/m2

AMAT IMMOBILIARIS ofrece fantástica casa adosada y reformada en venta, situada entre los barrios de Roses-Castellbell y Mas Lluí de Sant Feliu. Una excelente ubicación, a tan solo 5 minutos a pie del Parque Natural de Collserola y a 15 minutos en coche de la ciudad de Barcelona.

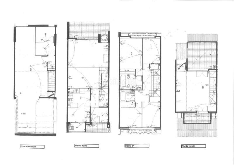
Vivienda cómodamente distribuida en 2 plantas más buhardilla y sótano, está completamente reformada y lista para entrar a vivir! Además, su orientación permite disfrutar del sol durante todo el día, y su ubicación dentro de un recinto cerrado exclusivo para vecinos, ofrece tranquilidad y silencio.
En planta baja dispone de recibidor, cocina-office completamente reformada con acabados de calidad, aseo de cortesía y salón-comedor con chimenea y salida a jardín privado de 55 m² con barbacoa de obra, ideal para disfrutar con familia y amigos. En 1ª planta se dispone la zona de noche, que cuenta con 1 dormitorio tipo suite con baño integrado, 2 dormitorios dobles y 1 individual, todos con armarios empotrados, más 2º baño con ducha. La buhardilla cuenta con una sala polivalente con salida a 2 terrazas, una de ellas tipo solárium con fantásticas vistas al mar y aeropuerto. Finalmente, en sótano, dispone de garaje tipo box con capacidad para 2 coches, zona lavandería y 1 habitación con armarios, ideal como espacio de almacenamiento.

Propiedad equipada con suelos de parquet natural, calefacción de gas por radiadores y carpintería exterior de aluminio.

last modified

Space distribution

  • 4 rooms
  • Floor area 240 m2
  • Terrace 18 m2
  • 3 bathrooms
  • Office Kitchen
  • Lumber room

General features

  • Heating
  • Parking place
  • Whitout air-conditioning
  • Year built 1988
  • Energy Certificate :
    Consumo:
    G
    999 kW h m2 / año
    Emisiones:
    G
    999 kg CO2 m2 / año
Ad : 531205772473

Location

Roses-Castellbell DEL COMTE DE VILARDAGA

Click on the map to navigate around it
930.000 € Ad price
3.695 €/m2€/m2 población
3.875 €/m2€/m2 of the ad
See €/m2 evolution in Sant Feliu de Llobregat
Would you like us to notify you when we get ads like this one? Create your alert and we will notify you by email when a new ad appears or an existing ad has changed.
 

Contact Amat Immobiliaris

Ad reference habitaclia/33300:

You will see the telephone number after sending your contact to the announcer to attend you.
You will see the phone number after you contact
Sending...