Evaluation saved!
Only you will see it
Comment saved!
Add your evaluation and/or a comment for this ad. You will only see your

Rent business premise in Ruta de la Plata Cáceres

  • 150 m2
  • 4,67 €/m2

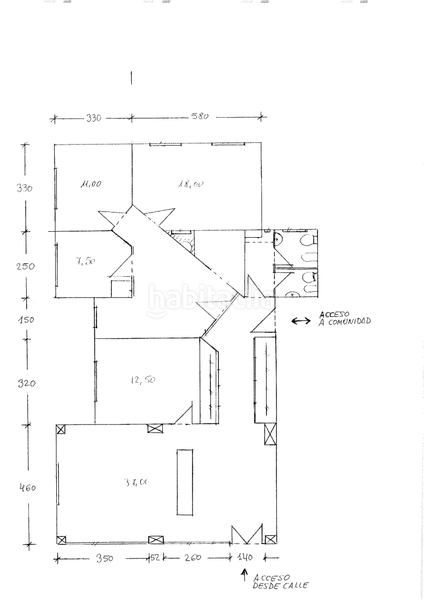
LOCAL A PIE DE CALLE ACONDICIONADO PARA OFICINA.

Estupendo local a pie calle acondicionado oficina. Amplio recibidor para oficina separada de la entrada por un pequeño murete decorativo, 3 despachos, archivo. 2 aseos. Office, Armarios empotrados. Calefacción y aire acondicionado por conductos. Rampa de acceso. Puerta de acceso a bloque contiguo. Trastero de 30 m2 en terraza.
#ref:OFI_589

Ask the announcer for more details

last modified

Space distribution

  • Floor area 150 m2

General features

  • Whitout furnish
  • Air-conditioning
  • Energy Certificate :
    Consumo:
    G
    293 kW h m2 / año
    Emisiones:
    E
    49 kg CO2 m2 / año
Ad : 31999000000442

Location

Ruta de la Plata

Click on the map to navigate around it
Would you like us to notify you when we get ads like this one? Create your alert and we will notify you by email when a new ad appears or an existing ad has changed.
 

Contact MULTIGESTIÓN EXTREMEÑA

Ad reference habitaclia/OFI_589:

You will see the telephone number after sending your contact to the announcer to attend you.
You will see the phone number after you contact
Sending...