Favorito y comentario
Only you will see it
20.561 €
Advise me if it drops
Rent industrial building in calle río zújar 25 in Getafe
Main characteristics
- 3.427 m2
- 6,00 €/m2
Detailed information
Módulos logísticos en alquiler en en CLA de Getafe
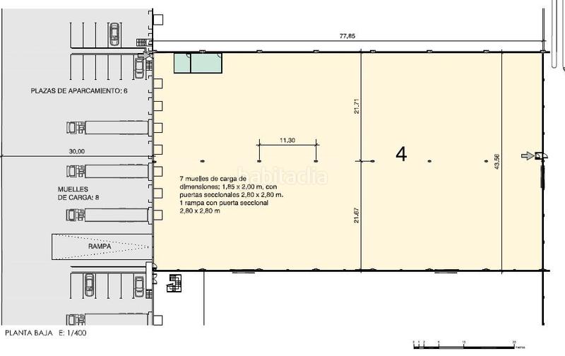
Plataforma logística con una superficie total de 32.000 m² construidos y con flexibilidad de superficies desde 3.000 m² situada en el C. L. A. de Getafe. Disponibilidad de 1 módulo de 3.427 m². Características: estructura de hormigón, cerramiento de chapa, altura libre de 10 m. , muelles de carga, cubierta plana tipo sándwich, solera de hormigón, PCI: BIE's, rociadores, extintores; recinto vallado, alarma, patio delantero y amplia zona de maniobras.
Ask the announcer for more detailslast modified
Space distribution
- Floor area 3427 m2
General features
- Year built 1996
one
Location
Los Olivos-Los Ángeles Calle Río Zújar 25
Click on the map to navigate around it
habitaclia.com no liability is accepted for any errors that the information shown on the map might contain. The user will be responsible for the use given to the said information.
Would you like us to notify you when we get ads like this one?
Create your alert and we will notify you by email when a new ad appears or an existing ad has changed.