Evaluation saved!
Only you will see it
Comment saved!
Add your evaluation and/or a comment for this ad. You will only see your
3.120 € Advise me if it drops
it has dropped 980 €

Rent office space with heating in Miribilla Bilbao

  • 300 m2
  • 10,40 €/m2

Oficina de 300m en alquiler en Miribilla

Quorum Bilbao presenta una oficina de grandes dimensiones perfectamente preparada para entrar a trabajar.

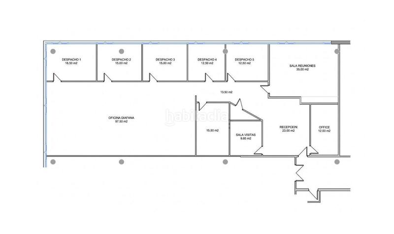
Cuenta con 300 metros cuadrados distribuidos en; zona de recepción con sala de espera, office, archivo, sala de reuniones, 5 despachos exteriores y una gran sala de trabajo abierta. Con suelo técnico e instalación eléctrica y de red completa.

Se encuentra situada en un edificio de oficinas construido en 2005 con todas las comodidades: conserje, portal adaptado, tres ascensores, aseos comunitarios en la misma planta, garajes con acceso directo (posibilidad de contar con 4 parcelas rotatorias, consultar precios), y aire acondicionado frio-caliente por bomba de calor.

Miribilla es un barrio moderno de Bilbao, bien comunicado con el centro gracias a numerosas líneas de autobús así como la estación de Renfe. Cuenta con grandes avenidas y muchas zonas verdes. A los pies de la oficina encontramos mucha vida gracias a varias terrazas de bares y restaurantes, un supermercado, un gimnasio, etc.

last modified

Space distribution

  • Floor area 300 m2

General features

  • Heating
  • Air-conditioning
  • Energy Certificate :
    Consumo:
    G
    999 kW h m2 / año
    Emisiones:
    G
    999 kg CO2 m2 / año

Residents facilities

  • Lift
Ad : 29469000002209

Location

Miribilla Calle Santiago de Compostela

Click on the map to navigate around it
Would you like us to notify you when we get ads like this one? Create your alert and we will notify you by email when a new ad appears or an existing ad has changed.
 

Contact INMOBILIARIA QUORUM BILBAO .

Ad reference habitaclia/11436:

You will see the telephone number after sending your contact to the announcer to attend you.
You will see the phone number after you contact
Sending...