Evaluation saved!
Only you will see it
Comment saved!
Add your evaluation and/or a comment for this ad. You will only see your

Rent office space with heating parking in Lavadores Vigo

AVENIDA DE MADRID

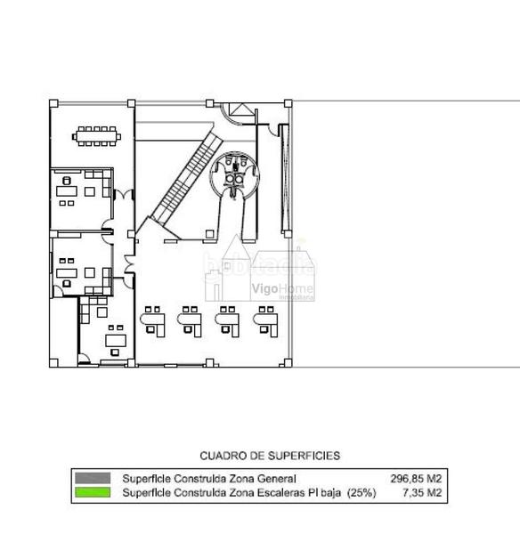
  • 517 m2
  • 6,19 €/m2

Amplias oficinas en Avenida de Madrid, totalmente acondicionadas y distribuidas en dos Plantas

Exteriores muy luminosas y con zona de aparcamiento exterior


Una propiedad estratégica y polivalente, perfecta para emprendedores e inversores que buscan potenciar su negocio en una ubicación privilegiada de Vigo.

CONTÁCTANOS YA Para más información, visita y reservas en VigoHome

Consúltanos sin compromiso y le ayudaremos a encontrar el local que mejor se adapte a sus necesidades.

Puedes ver el resto de nuestras propiedades disponibles en nuestra página web, ponte en contacto con nosotros y estaremos encantados en orientarte en tu compra. Te acompañaremos y asesoraremos en el proceso de la compraventa hasta la entrega de llaves.

Asesórate con nosotros. Ofrecemos estudio financiero gratis donde podrás conseguir una financiación a tu medida (sujeta a estudio)

Contáctanos ya!! A través de este formulario, llamándonos o a través de nuestra web

La información contenida en este anuncio es meramente informativa y no tiene carácter contractual.

last modified

Space distribution

  • Floor area 517 m2

General features

  • Heating
  • Parking place
  • Furnished
  • Air-conditioning
  • Year built 1999
  • Energy Certificate :
    Consumo:
    G
    999 kW h m2 / año
    Emisiones:
    G
    999 kg CO2 m2 / año

Residents facilities

  • Lift
Ad : 33588000002389

Location

Lavadores AVENIDA DE MADRID

Click on the map to navigate around it
Would you like us to notify you when we get ads like this one? Create your alert and we will notify you by email when a new ad appears or an existing ad has changed.
 

Contact VigoHome

Ad reference habitaclia/L010169:

You will see the telephone number after sending your contact to the announcer to attend you.
You will see the phone number after you contact
Sending...