Evaluation saved!
Only you will see it
Comment saved!
Add your evaluation and/or a comment for this ad. You will only see your

Rent office space in carrer d'aragó 208 in L´Antiga Esquerra de l´Eixample Barcelona

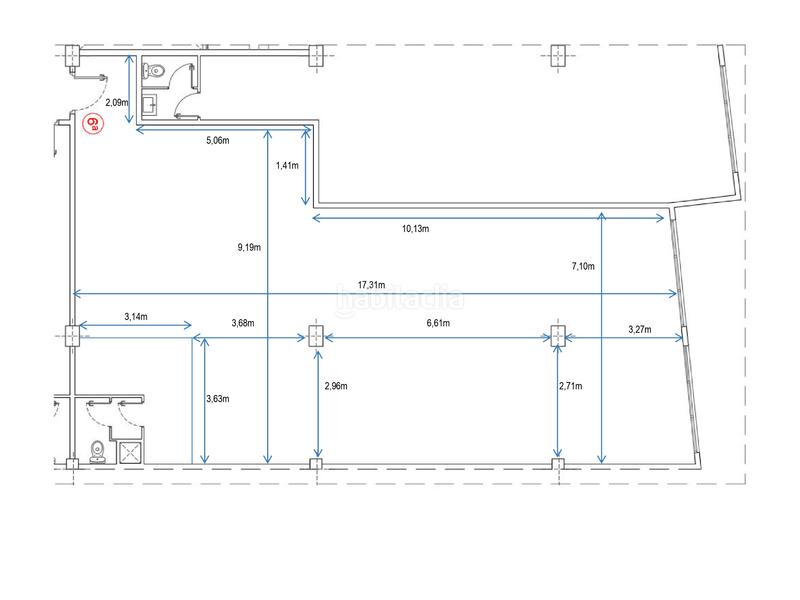
  • 169 m2
  • 2 bathrooms
  • 14,00 €/m2

OFICINA REFORMADA CENTRO BARCELONA

DESGLOSE DE SUPERFICIES:
Planta 3: 169 m².

CONDICIONES ECONÓMICAS:
Renta: 14,00€/m²/mes.
Gastos: 2,40€/m²/mes.

CARACTERÍSTICAS:
Oficina totalmente diafana con mucha luz natural
Zona office equipada
Sistema climatización independiente
2 Baños reformados
3 Ascensores
Conserjería horario comercial
Conexiones perimetrales
Parking en el mismo edificio

UBICACIÓN:
Edificio de oficinas entre Carrer Muntaner y Aribau, en pleno centro de negocios y comercial de Barcelona.
Transporte público:
Metro: L1-L2 parada Universitat.
FGC: S1-S2-S5-S55-L6-L7 parada Provença.
Bus: 64-66-N3-N7-N8

last modified

Space distribution

  • Floor area 169 m2

General features

  • Parking place
  • Whitout furnish
  • Air-conditioning
  • floor number 3
  • Energy Certificate :
    Consumo:
    C
    48 kW h m2 / año
    Emisiones:
    C
    220 kg CO2 m2 / año

Residents facilities

  • Lift
Ad : 3097004299084

Location

L´Antiga Esquerra de l´Eixample Carrer d'Aragó 208

Click on the map to navigate around it
Would you like us to notify you when we get ads like this one? Create your alert and we will notify you by email when a new ad appears or an existing ad has changed.
 

Contact Activa Properties

Ad reference habitaclia/21524:

You will see the telephone number after sending your contact to the announcer to attend you.
You will see the phone number after you contact
Sending...